My Barndominium Plans
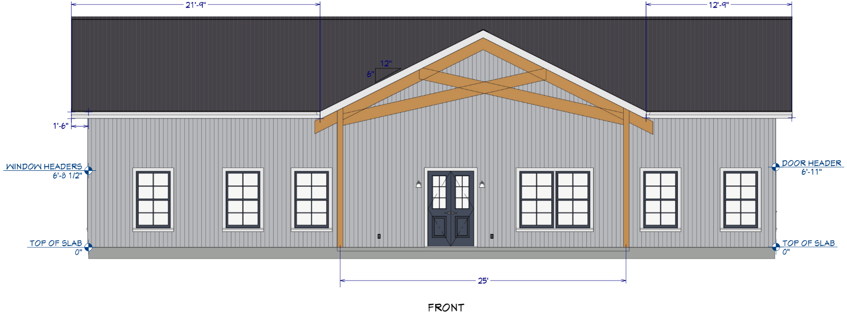
Westcove Barndominium House Plan (PL-180043)
Westcove Barndominium House Plan (PL-180043)
Couldn't load pickup availability
Specifications
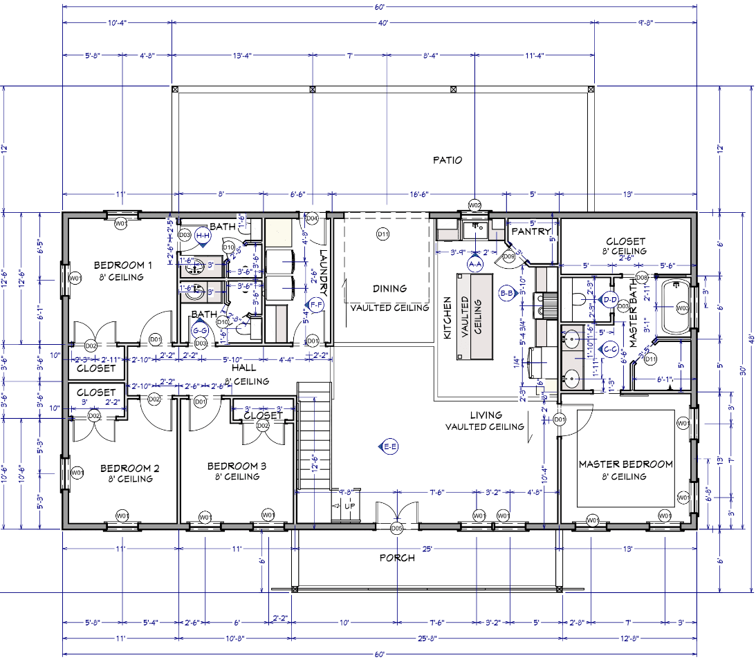
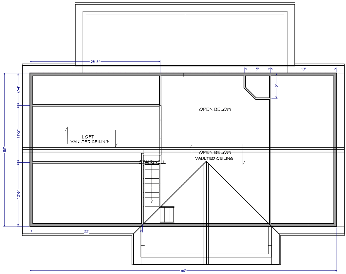
- Dimensions: 60' x 30'
- Living/Heated Area: 1,800 sq. ft.
- 2 Stories
- 4 Bedrooms
- 3 Bathrooms
About
Introducing the Westcove Home, a spacious and modern barndominium floor plan designed for comfortable living.
Spanning 60' x 30', this two-story home boasts 1,800 sq. ft. of living space, including four bedrooms, each featuring its own closet for ample storage. With three bathrooms, convenience is paramount.
The open concept living area, accentuated by a vaulted ceiling, creates an inviting atmosphere for gatherings and relaxation.
A dedicated laundry room adds functionality and organization to daily routines.
The Westcove Home offers a perfect blend of style, practicality, and room to grow, making it an ideal choice for those seeking both comfort and elegance.
What's Included?
You will receive a PDF download with stock plan documents that include the following:
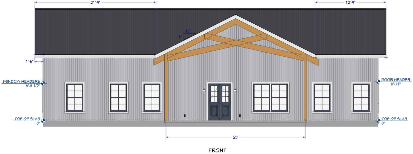
- Detailed Floor Plan
- Elevations
- Electrical/Lighting Plan
- Foundation Layout Plan
- Pole Layout Plan
- Roof Plan
- Window, Door & Light Schedule
Click here to download a sample plan.
Plan Modifications
Looking to make changes to our plans? Get in contact with us and our team will be in touch within 48 hours with a free personalized quotation.
*All square footages are estimates
Share
What's not included?
What's not included?
- Architectural or Engineering Stamp: To be addressed locally if deemed necessary.
- Site Plan: To be addressed locally when it is deemed necessary.
- Energy calculations: To be addressed locally when they are deemed necessary.
Delivery
Delivery
This product is entirely digital. You will receive the plan via email in PDF format.
Return Policy
Return Policy
All purchases of barndominium house plans are non-refundable and
non-exchangeable due to the digital format of the product. Please ensure
that the chosen plan suits your requirements before making the
purchase.








