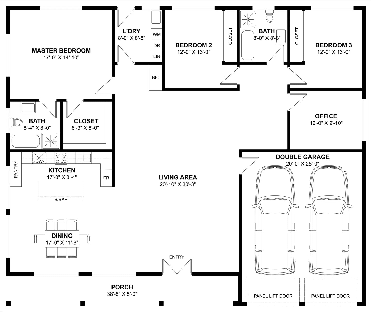
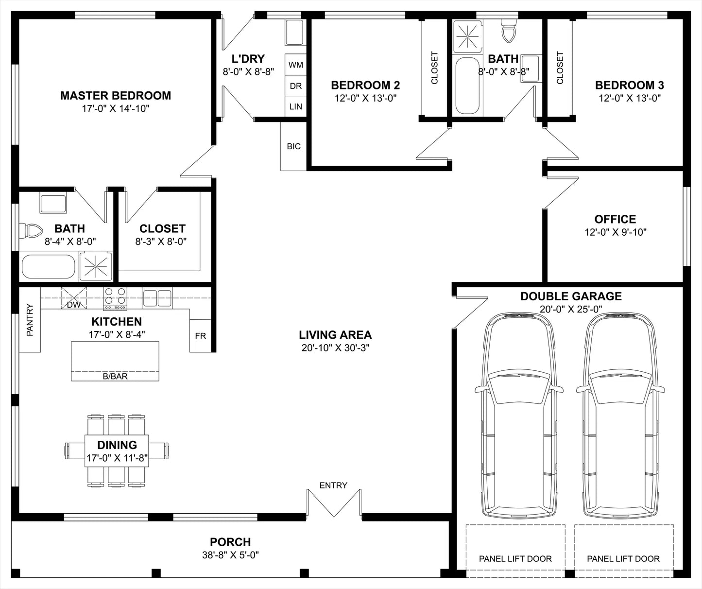
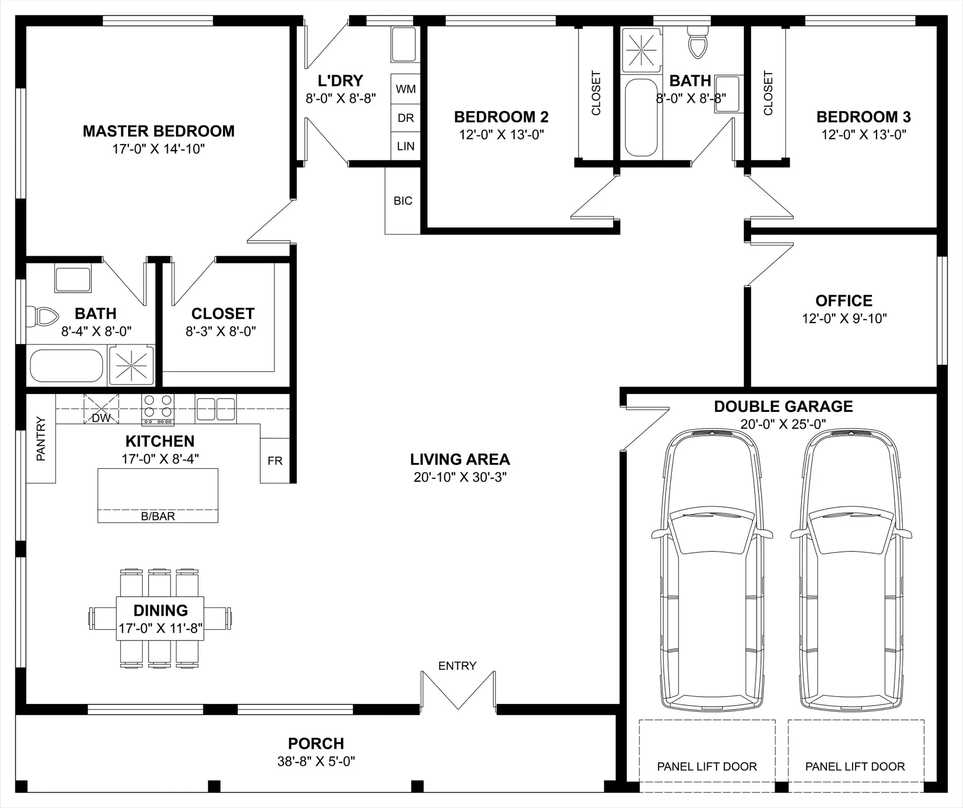
The Zanwick Plan offers 3,000 sq. ft. of comfortable and efficient living within a 60' x 50' layout.
This inviting barndominium features three bedrooms and two bathrooms, making it a perfect fit for families or those who want extra space.
The open-concept living area seamlessly connects the kitchen, dining, and family spaces, creating a bright and welcoming flow for everyday living and entertaining.
A dedicated office room adds flexibility for work or study, while a laundry room provides convenience.
With a 2-car attached garage and a welcoming front porch, The Zanwick Plan blends practicality with modern barndominium style.

