My Barndominium Plans
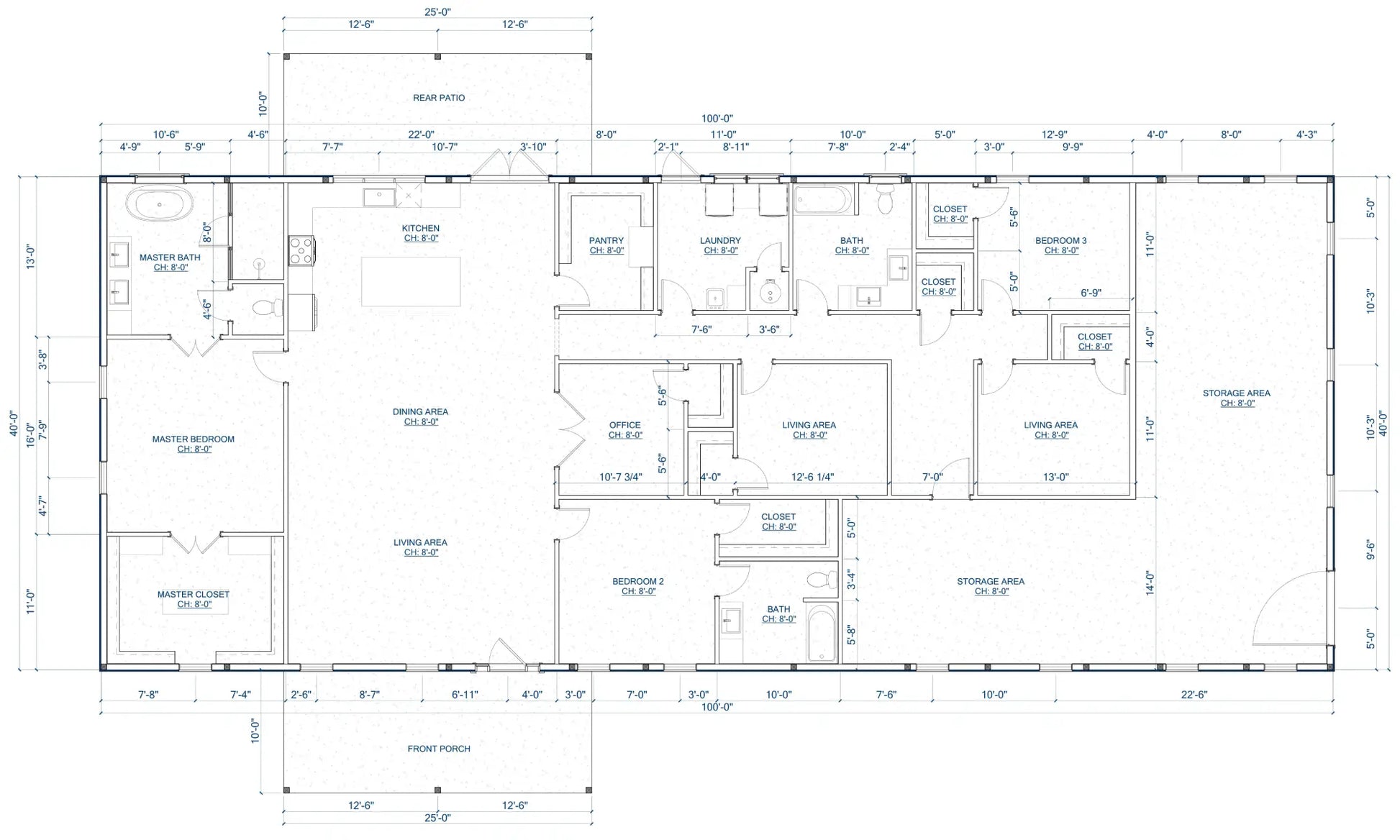
The Yelden Plan (VC3027-A)
The Yelden Plan (VC3027-A)
Couldn't load pickup availability
Specifications
- Dimensions: 40' x 100'
- Living/Heated Area: 3,030 sq. ft.
- Total Area: 4,500 sq. ft.
- 3 Bedrooms
- 3 Bathrooms
About
The Yelden Plan offers 3,030 sq. ft. of heated living space within a 40' x 100' layout, totaling 4,500 sq. ft. overall.
This barndominium is designed for both comfort and versatility, featuring three bedrooms and three bathrooms.
The open-concept living area serves as the heart of the home, seamlessly connecting kitchen, dining, and family spaces.
Two enclosed living areas provide flexibility for entertainment or quiet retreats, while an office room supports work or study needs.
Practical additions include a pantry, laundry room, and a large storage room for organization.
With front and back porches outside, The Yelden Plan perfectly balances function and charm.
What's Included?
You will receive a PDF download with stock plan documents that include the following:
- Detailed Floor Plan
- Elevations
- Electrical/Lighting Plan
- Foundation Layout Plan
- Pole Layout Plan
- Roof Plan
- Window, Door & Light Schedule
Click here to download a sample plan.
Plan Modifications
Looking to make changes to our plans? Get in contact with us and our team will be in touch within 48 hours with a free personalized quotation.
*All square footages are estimates
Share
What's not included?
What's not included?
- Architectural or Engineering Stamp: To be addressed locally if deemed necessary.
- Site Plan: To be addressed locally when it is deemed necessary.
- Energy calculations: To be addressed locally when they are deemed necessary.
Delivery
Delivery
This product is entirely digital. You will receive the plan via email in PDF format.
Return Policy
Return Policy
All purchases of barndominium house plans are non-refundable and
non-exchangeable due to the digital format of the product. Please ensure
that the chosen plan suits your requirements before making the
purchase.





