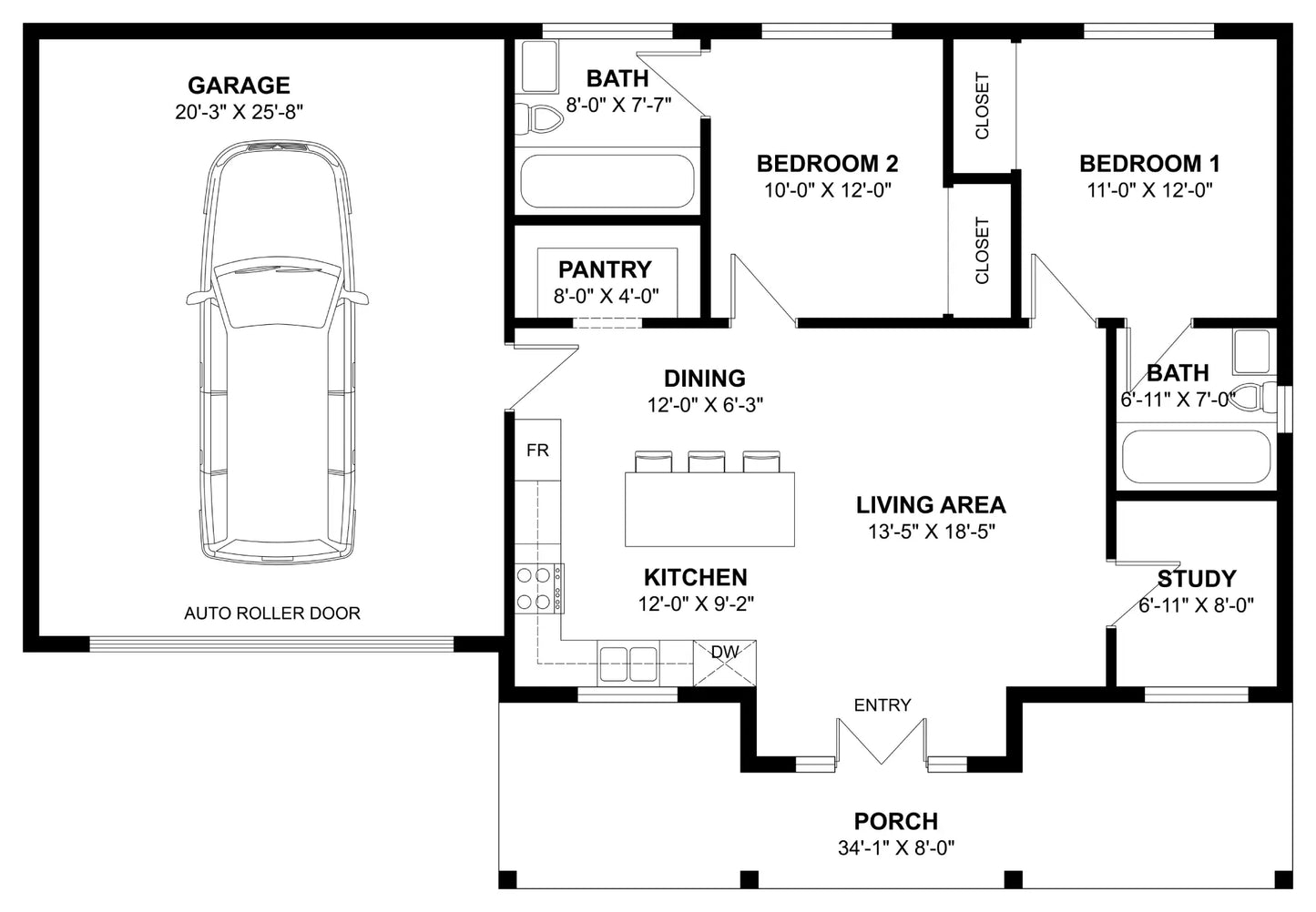
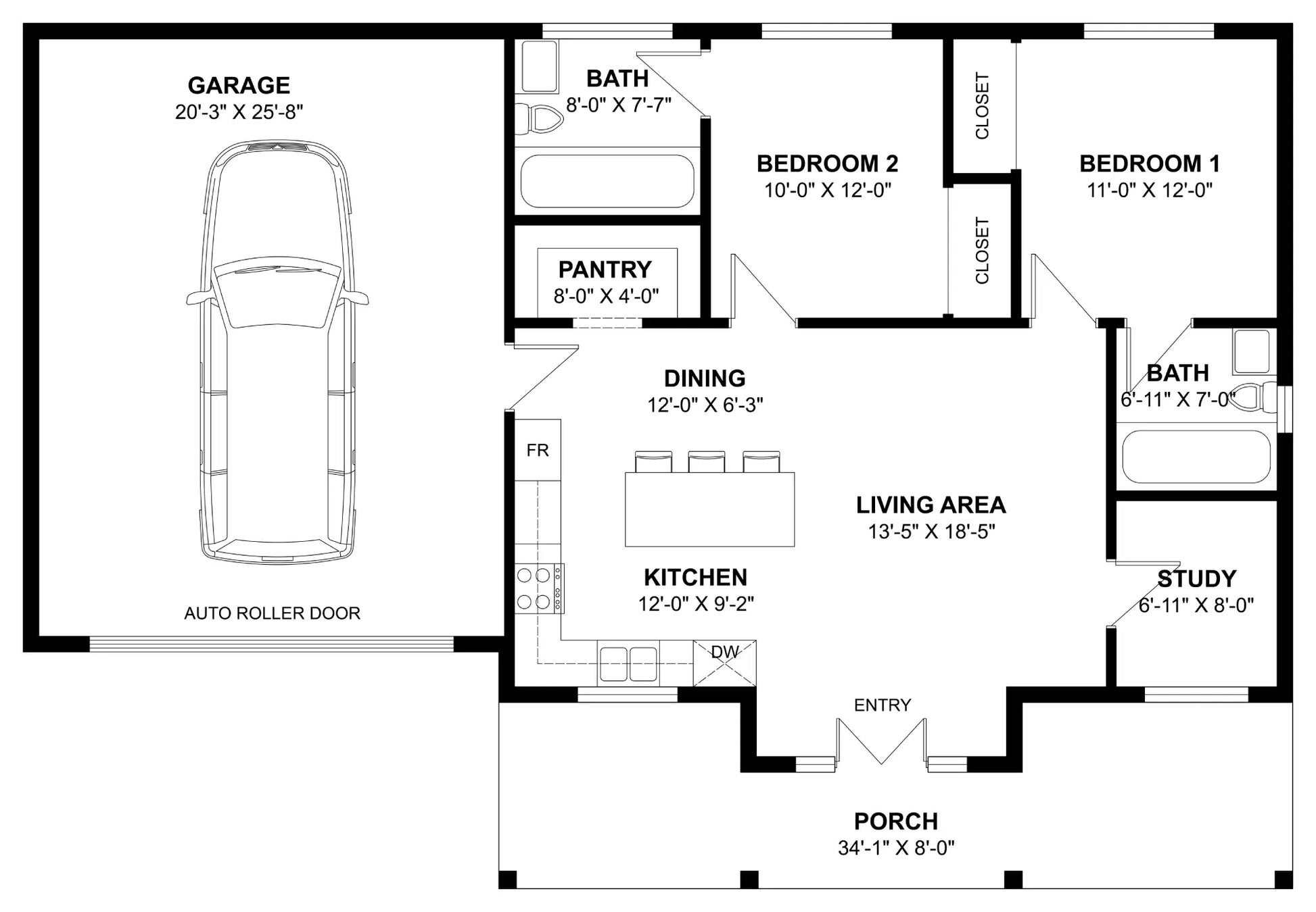
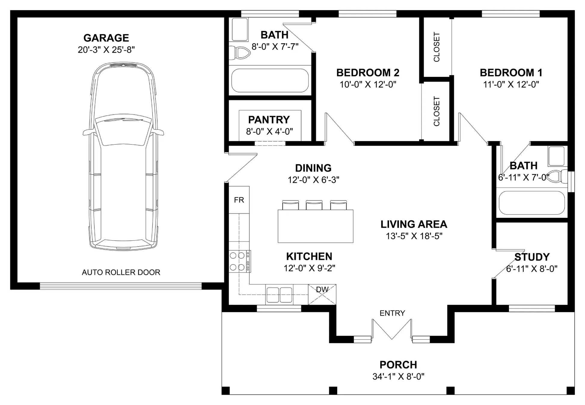
The Windbury Plan offers 1,818 sq. ft. of well-designed living space within a 55' x 37' layout, combining comfort and functionality in a modern barndominium style.
This home features two bedrooms and two bathrooms, making it ideal for small families, couples, or downsizing homeowners.
At the heart of the design is an open-concept living area that seamlessly connects the kitchen, dining, and family spaces.
A dedicated pantry adds extra storage, while a study/office room provides flexibility for work or hobbies.
With a welcoming front porch and a convenient 1-car attached garage, The Windbury Plan balances practicality and charm beautifully.

