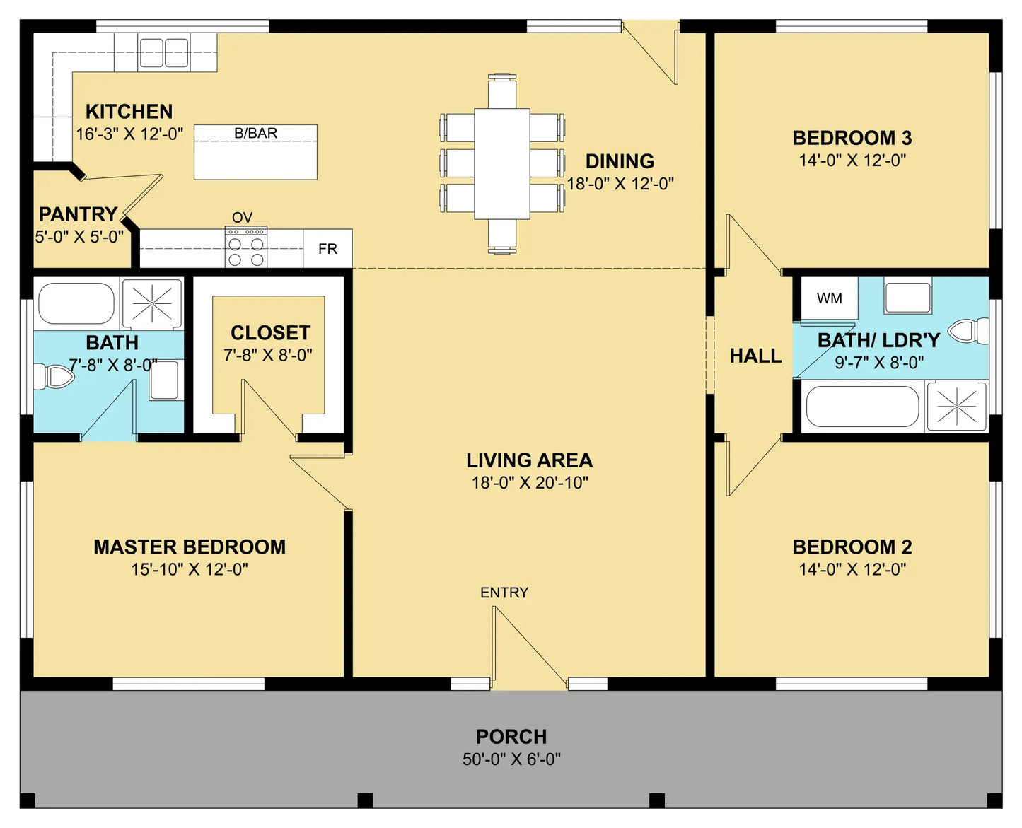
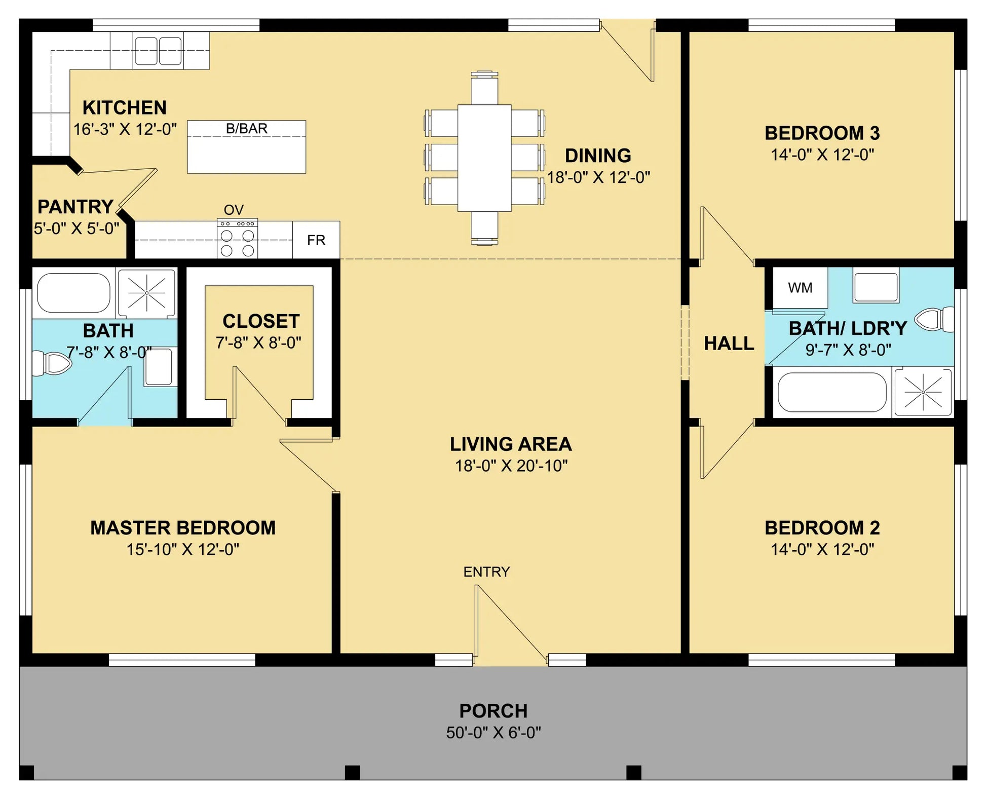
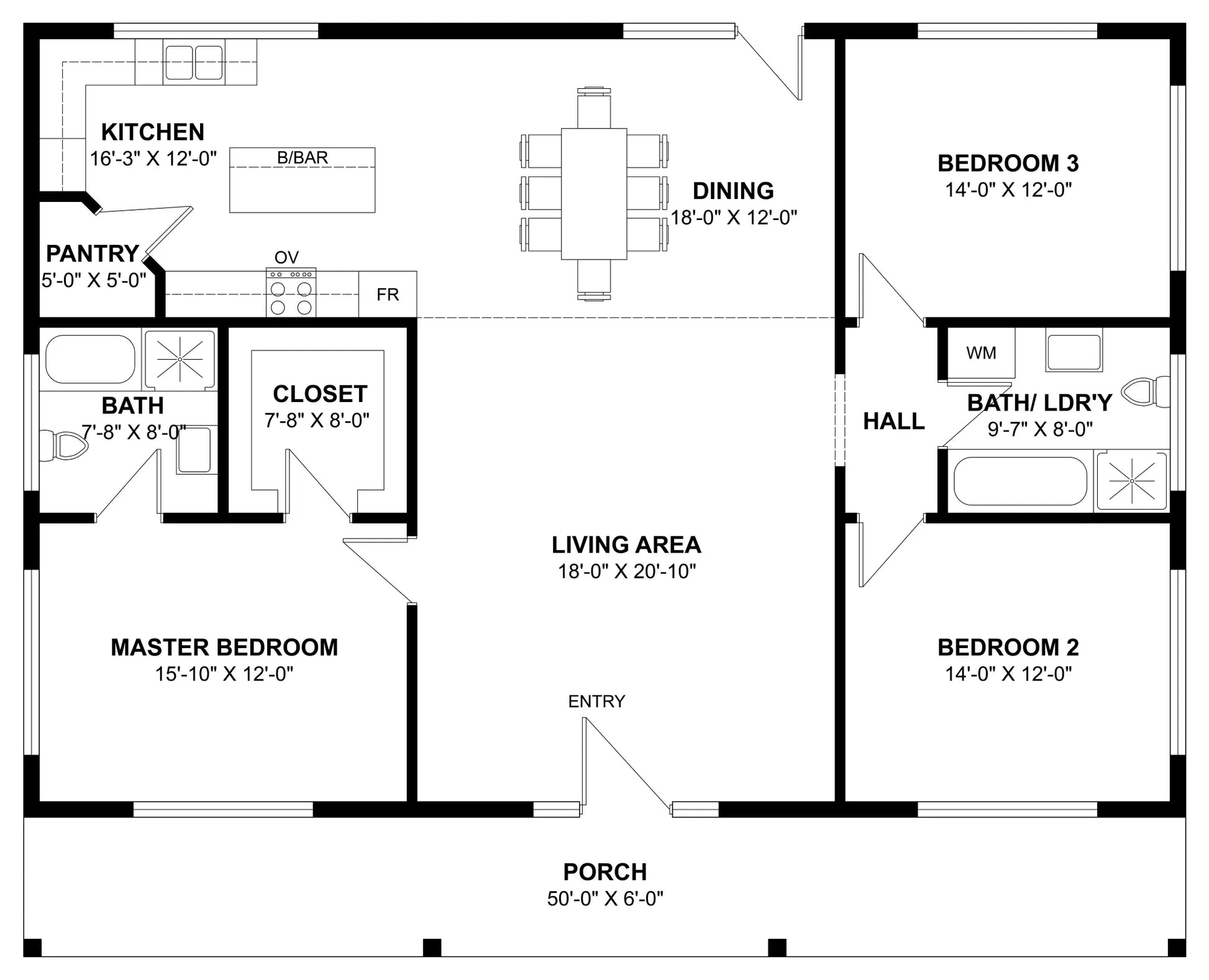
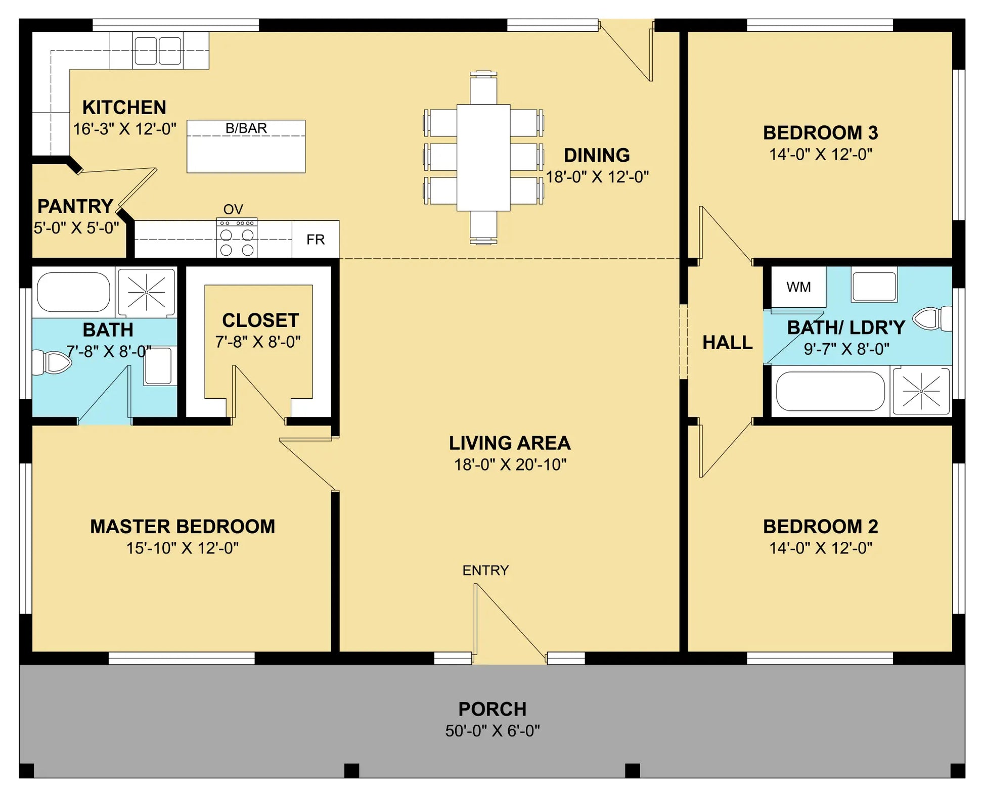
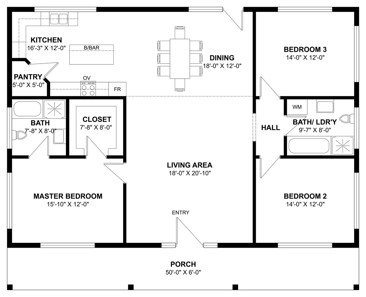
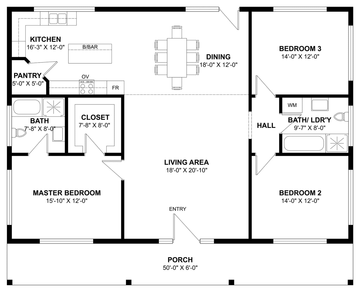
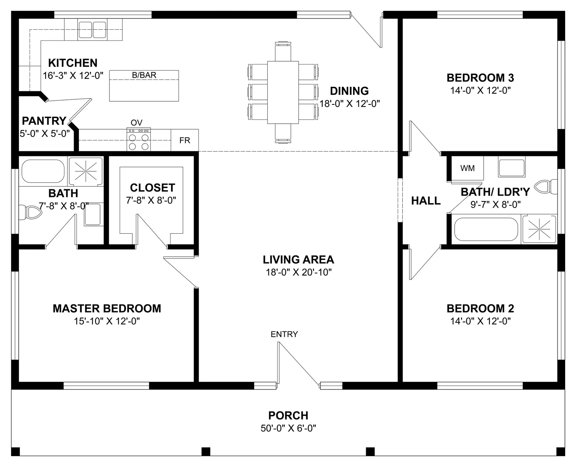
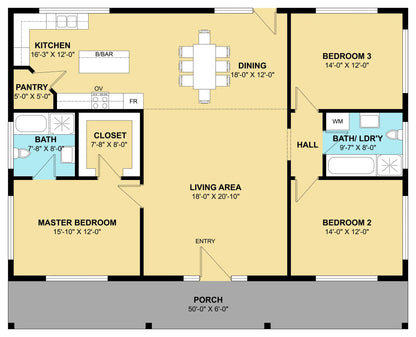
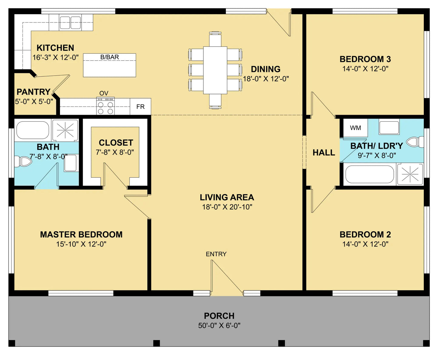
The Valmere Plan offers 2,008 sq. ft. of comfortable living space within a 50' x 40' layout, thoughtfully designed for modern families.
This barndominium features three bedrooms and two bathrooms, providing a practical yet inviting floor plan.
At its heart, the open-concept living area connects the kitchen, dining, and family spaces, creating a seamless flow perfect for gatherings and everyday living.
A dedicated pantry ensures organized kitchen storage, while a laundry room adds convenience to daily routines.
With a welcoming front porch for outdoor relaxation, The Valmere Plan combines charm, functionality, and efficiency in a well-rounded home design.

