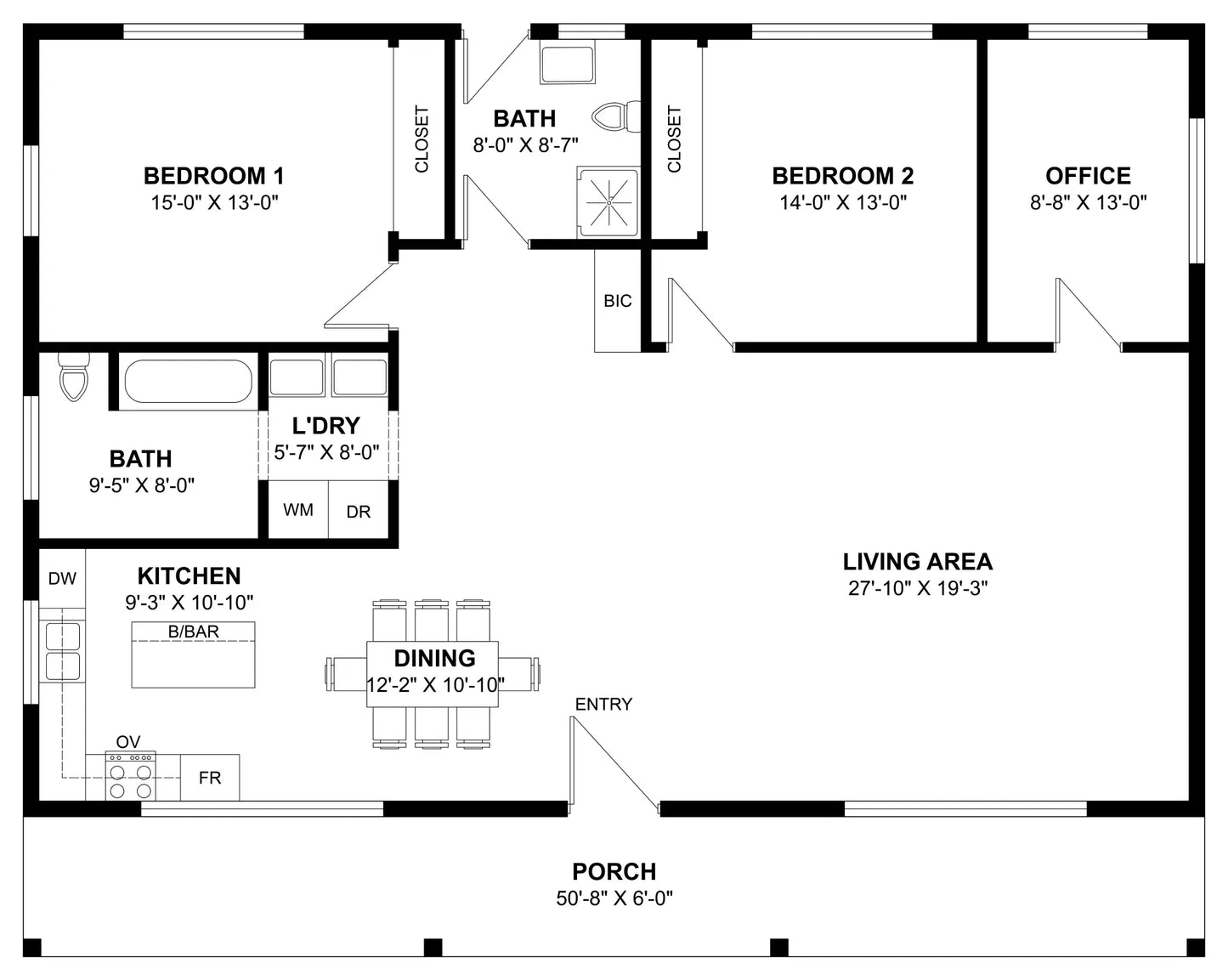
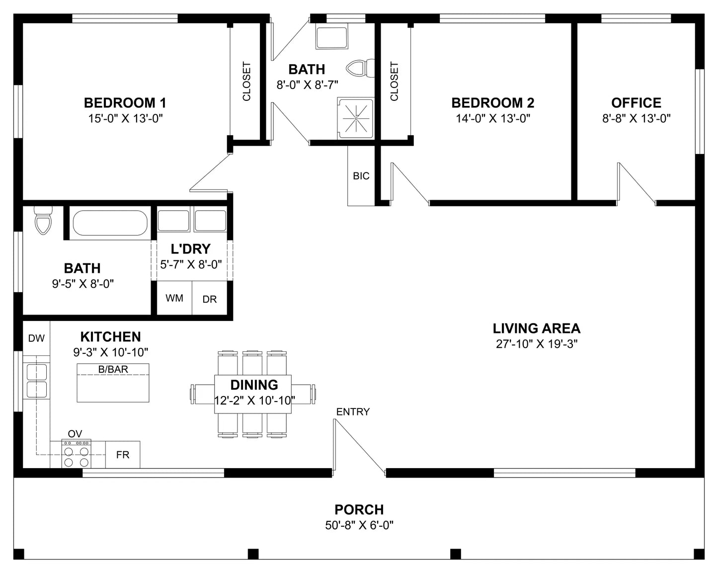
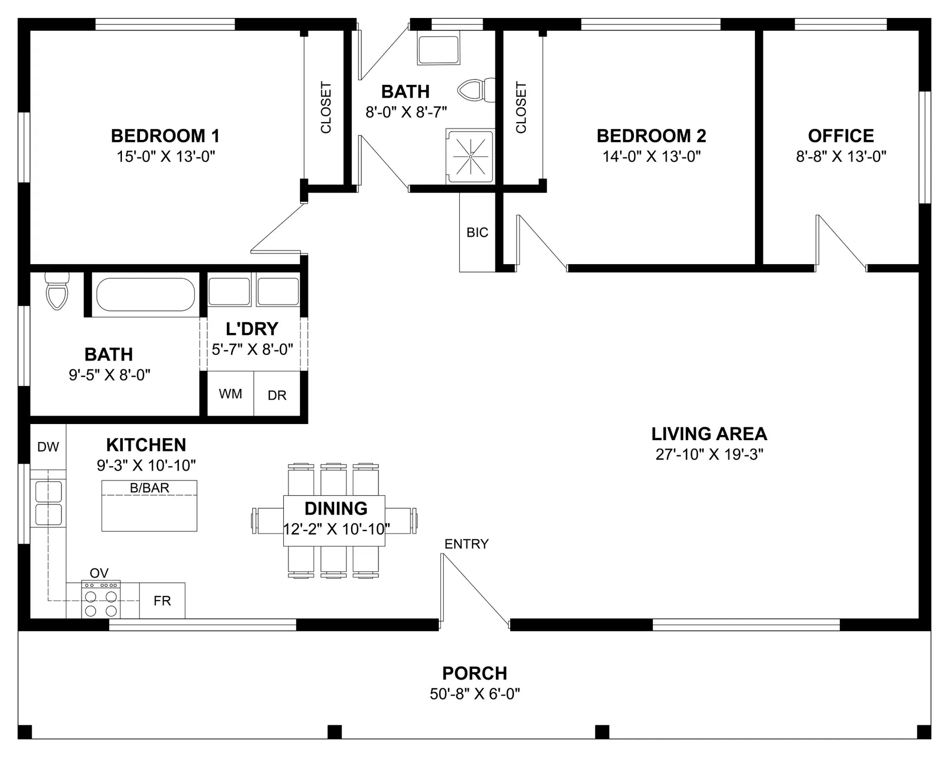
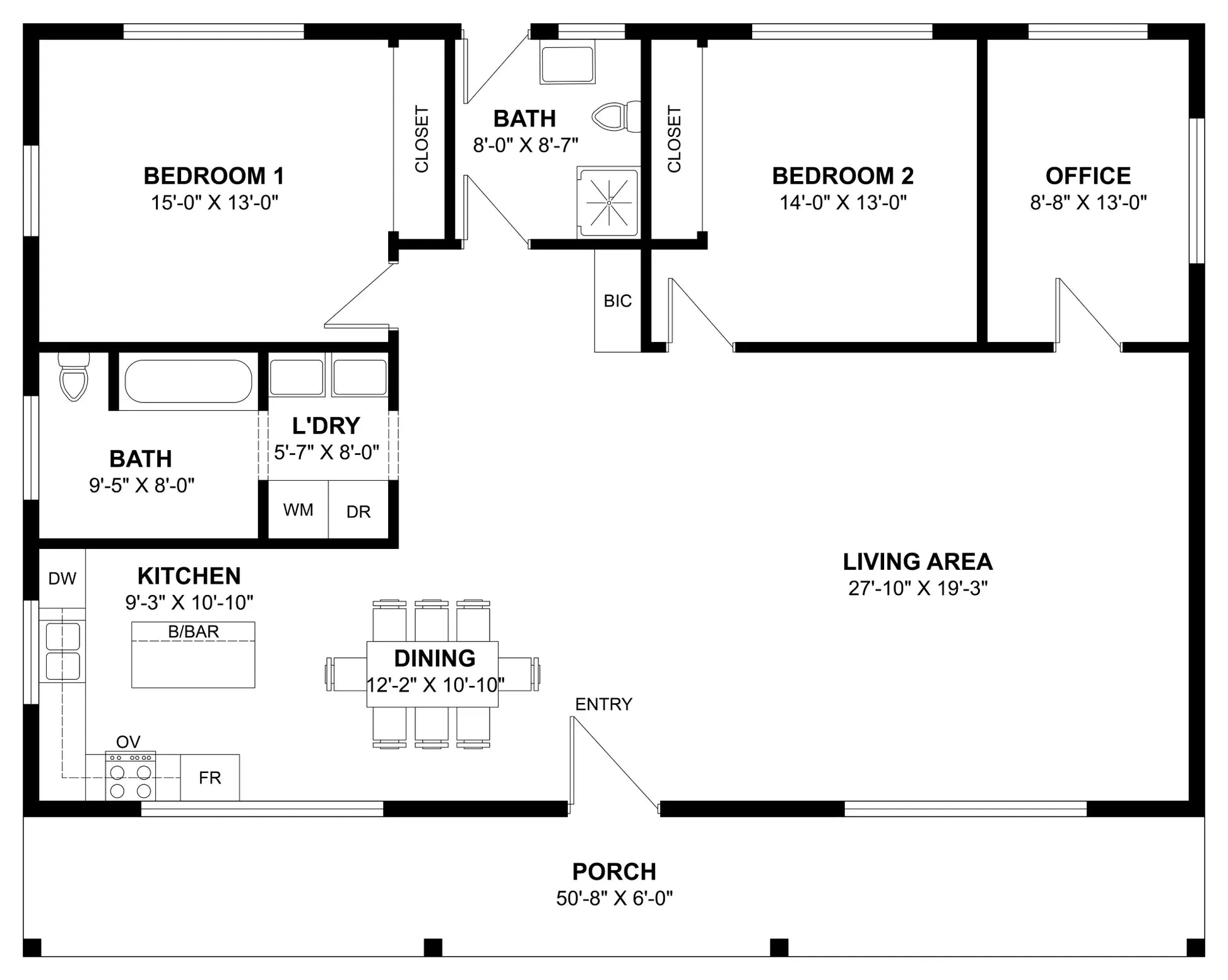
The Thorwick Plan offers 2,027 sq. ft. of thoughtfully designed living space within a 51' x 40' layout, blending comfort and practicality.
This barndominium features two spacious bedrooms and two bathrooms, making it an ideal choice for couples, small families, or downsizing homeowners.
The open-concept living area seamlessly connects the kitchen, dining, and family spaces, creating a bright and welcoming flow.
A dedicated office room adds flexibility for work or study, while a laundry room enhances everyday convenience.
With its wide front porch for outdoor relaxation, The Thorwick Plan combines modern functionality with inviting barndominium charm.

