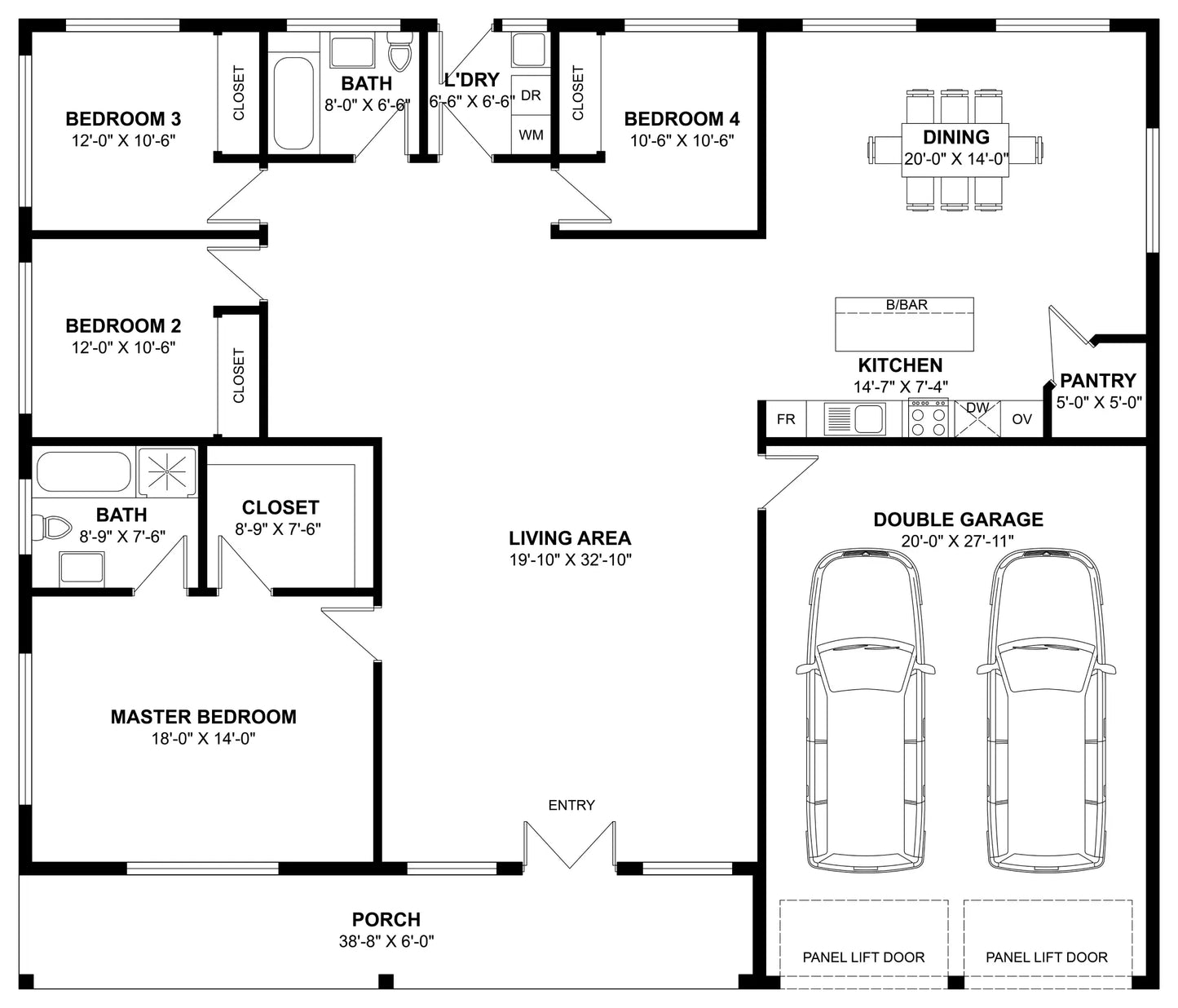
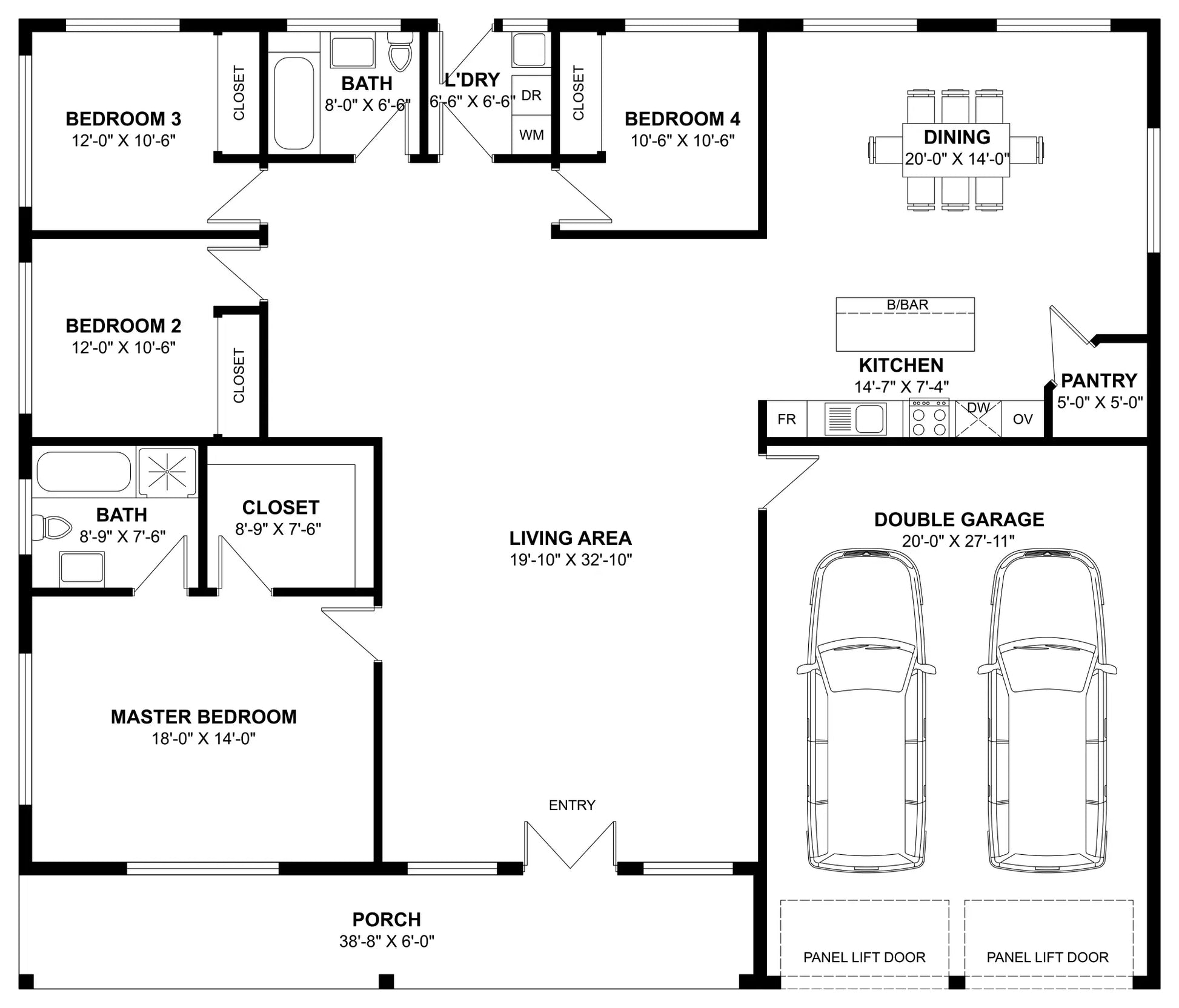
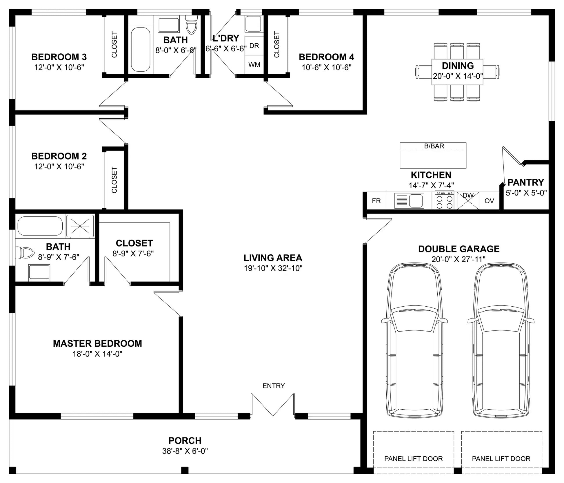
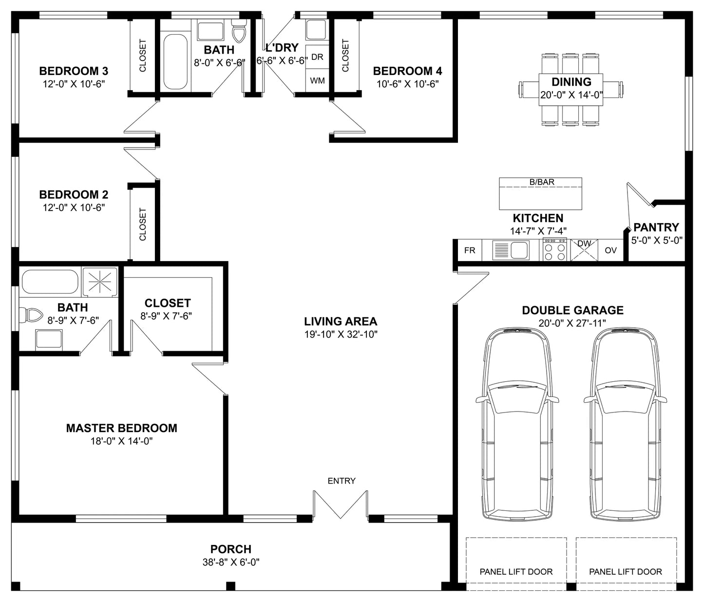
The Thornleigh Plan offers 3,062 sq. ft. of thoughtfully designed living space within a 60' x 51' layout, perfect for modern family living.
This barndominium features four bedrooms and two bathrooms, providing comfort and functionality for everyday life.
The open-concept living area serves as the heart of the home, seamlessly connecting the kitchen, dining, and family spaces for an inviting flow.
A dedicated pantry and laundry room add convenience and organization, while the front porch creates a welcoming outdoor retreat.
With a 2-car attached garage, The Thornleigh Plan combines practicality, style, and comfort in a well-balanced design.

