My Barndominium Plans
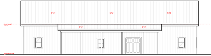
The Southdale Plan (VC3028-A)
The Southdale Plan (VC3028-A)
Couldn't load pickup availability
Specifications
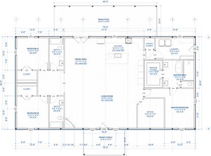
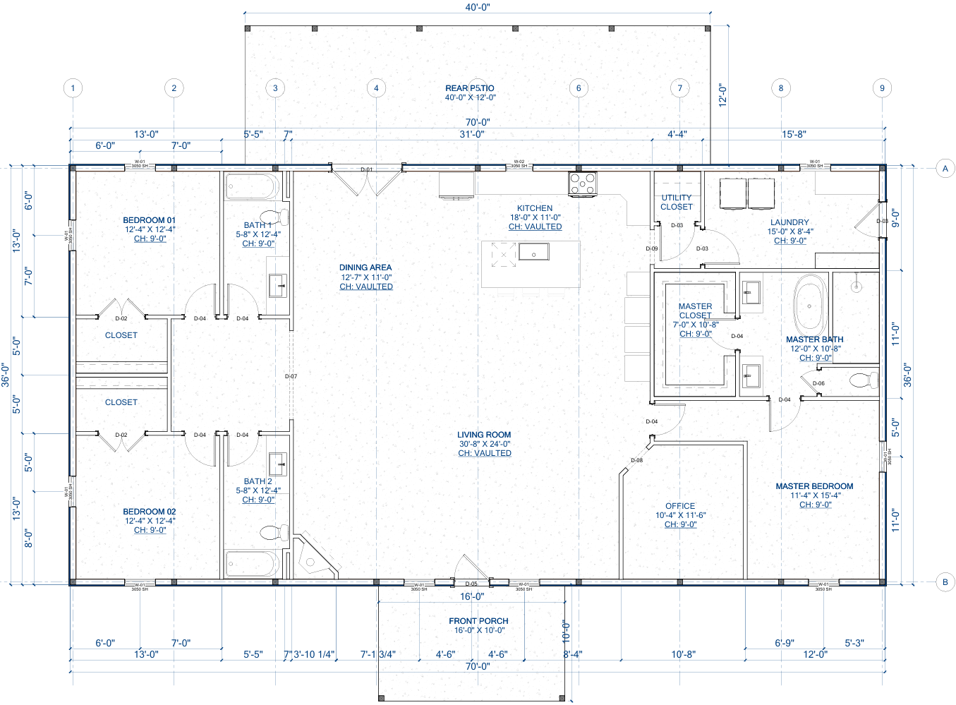
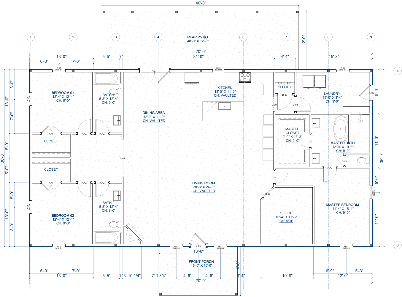
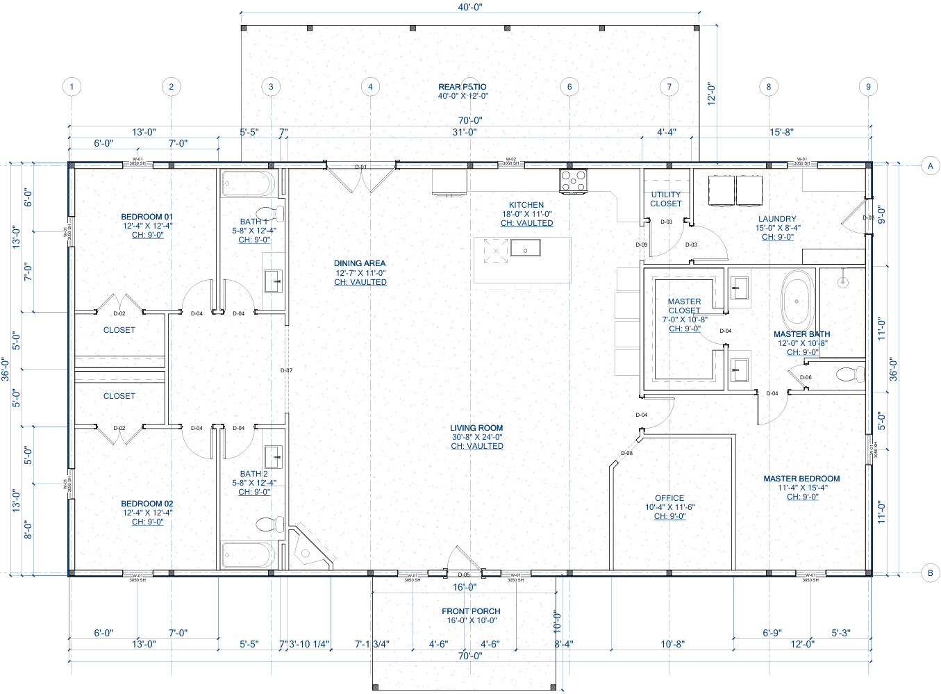
- Dimensions: 70' x 36'
- Living/Heated Area: 2,520 sq. ft.
- Total Area: 3,160 sq. ft.
- 3 Bedrooms
- 3 Bathrooms
About
The Southdale Plan offers 2,520 sq. ft. of heated living space within a 70' x 36' layout, totaling 3,160 sq. ft. overall.
Designed with both comfort and practicality in mind, this barndominium features three bedrooms and three bathrooms, providing ample space for family living.
The open-concept layout seamlessly connects the kitchen, dining, and family areas, creating a welcoming atmosphere for gatherings and everyday life.
A dedicated office room supports work or study needs, while a laundry room and utility room add convenience and organization.
With inviting front and back porches, The Southdale Plan balances functionality with modern barndominium charm.
What's Included?
You will receive a PDF download with stock plan documents that include the following:
- Detailed Floor Plan
- Elevations
- Electrical/Lighting Plan
- Foundation Layout Plan
- Pole Layout Plan
- Roof Plan
- Window, Door & Light Schedule
Click here to download a sample plan.
Plan Modifications
Looking to make changes to our plans? Get in contact with us and our team will be in touch within 48 hours with a free personalized quotation.
*All square footages are estimates
Share
What's not included?
What's not included?
- Architectural or Engineering Stamp: To be addressed locally if deemed necessary.
- Site Plan: To be addressed locally when it is deemed necessary.
- Energy calculations: To be addressed locally when they are deemed necessary.
Delivery
Delivery
This product is entirely digital. You will receive the plan via email in PDF format.
Return Policy
Return Policy
All purchases of barndominium house plans are non-refundable and
non-exchangeable due to the digital format of the product. Please ensure
that the chosen plan suits your requirements before making the
purchase.





