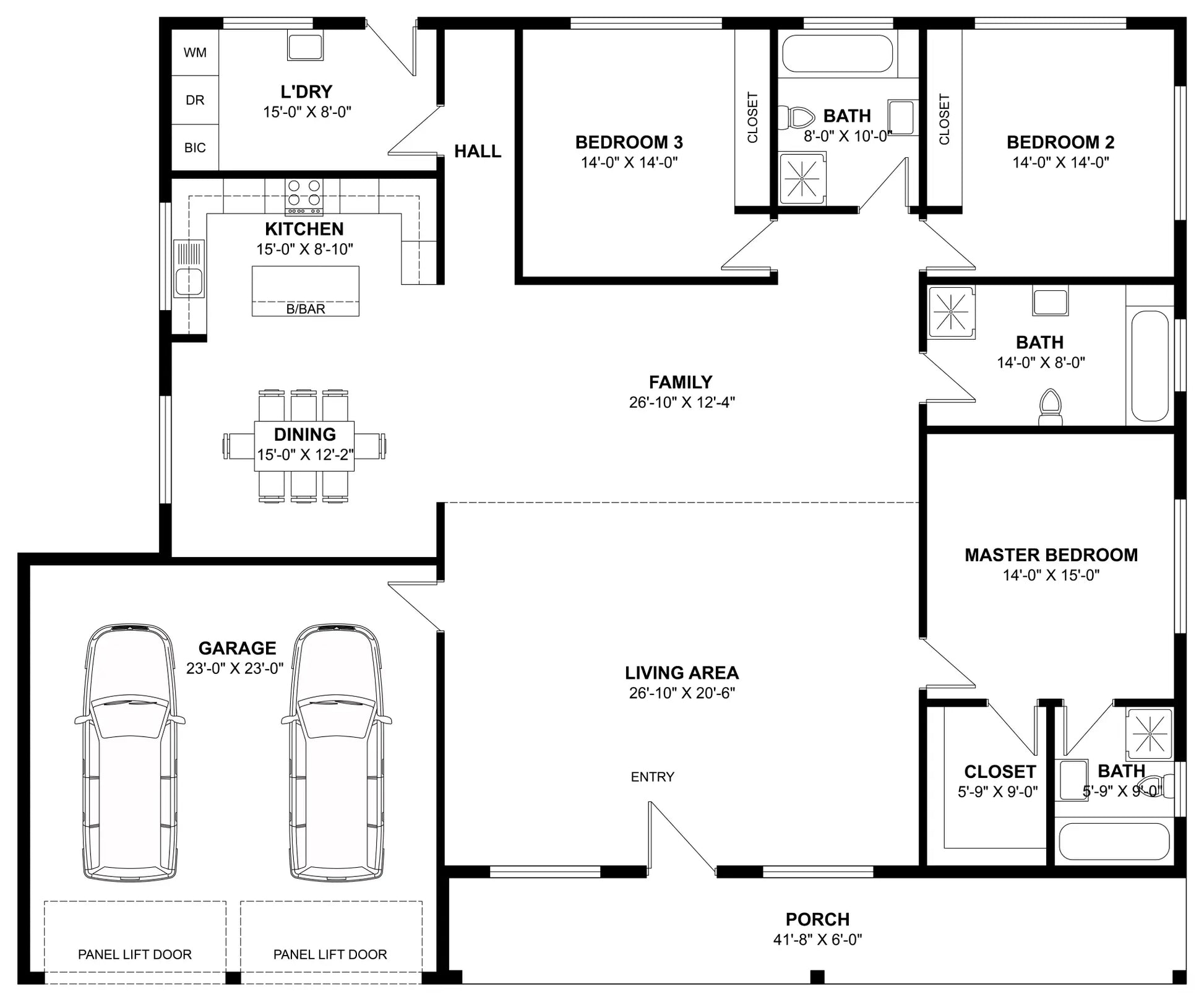
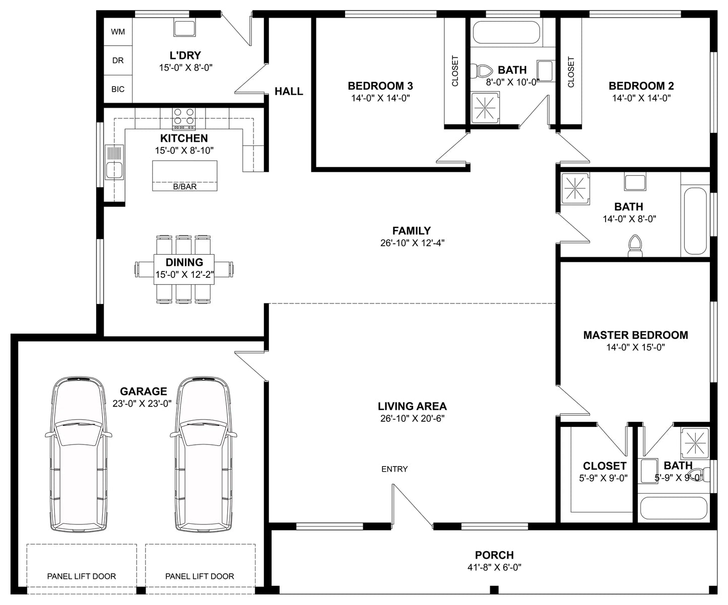
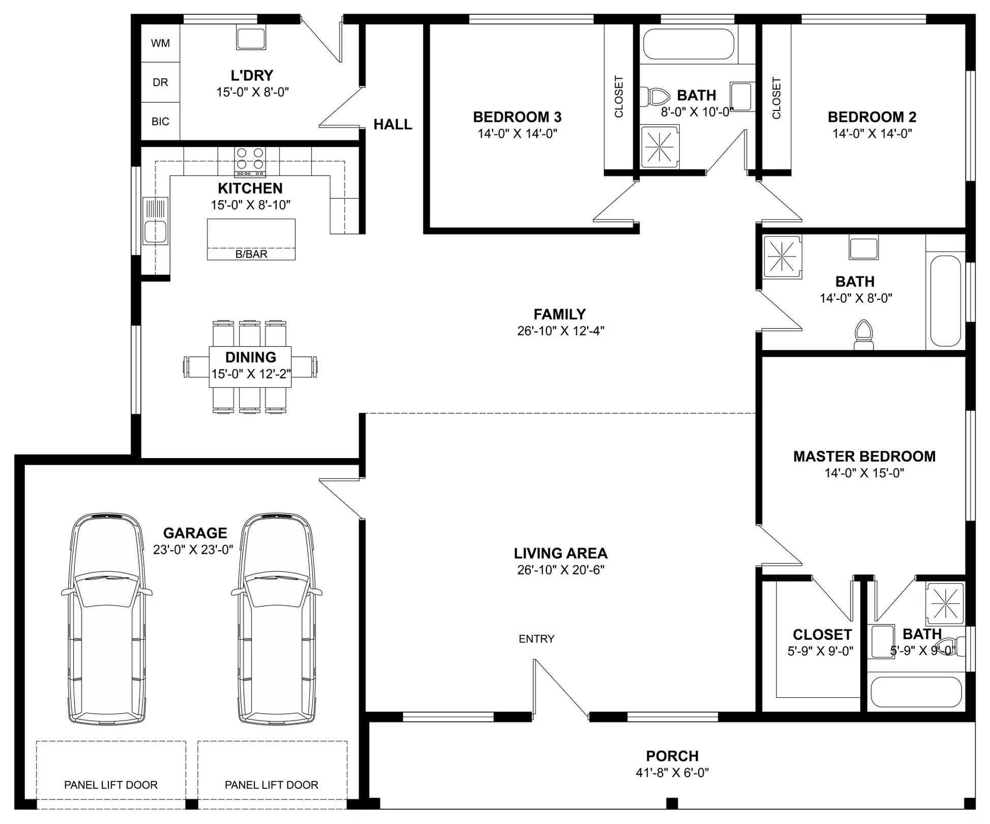
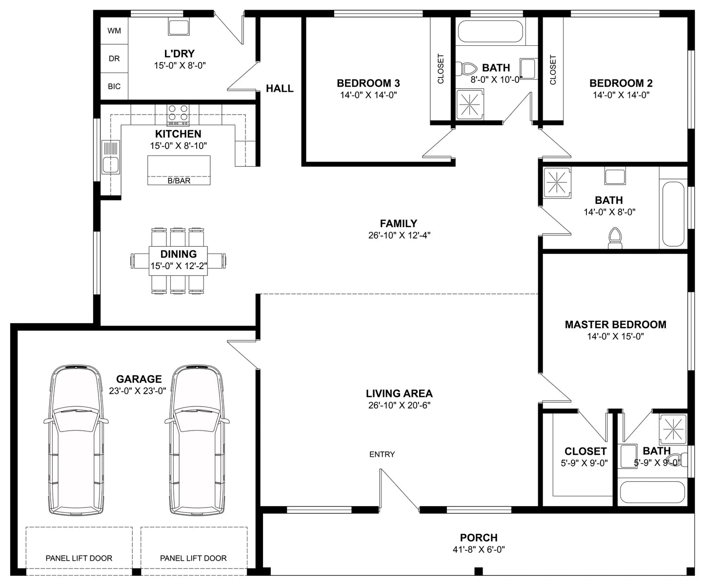
The Fairview Plan offers 3,361 sq. ft. of thoughtfully designed living space within a 66' x 55' footprint.
This home includes 3 bedrooms and 3 bathrooms, blending functionality with comfort.
A welcoming front porch leads into an open-concept living area that connects the kitchen, dining, and main living spaces.
A dedicated laundry room provides everyday convenience, while a secondary family living space adds flexibility for relaxation, entertainment, or gatherings.
With its 2-car attached garage and practical layout, The Fairview Plan is a versatile choice for families seeking both style and convenience.

