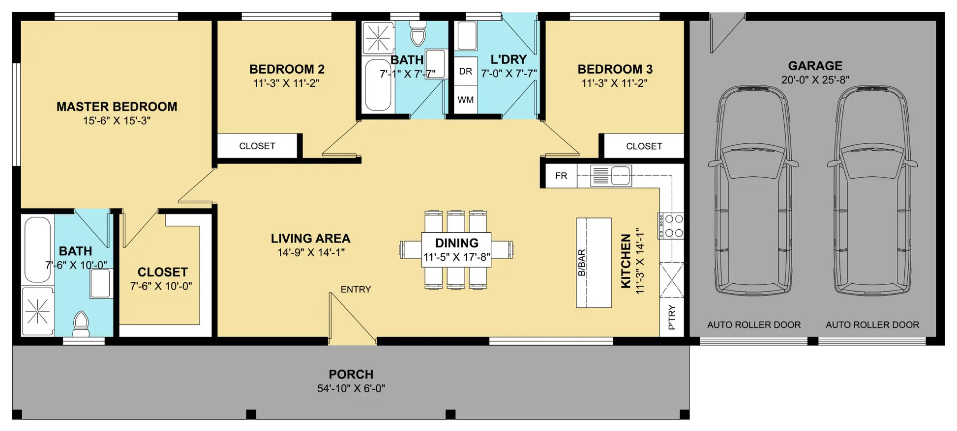
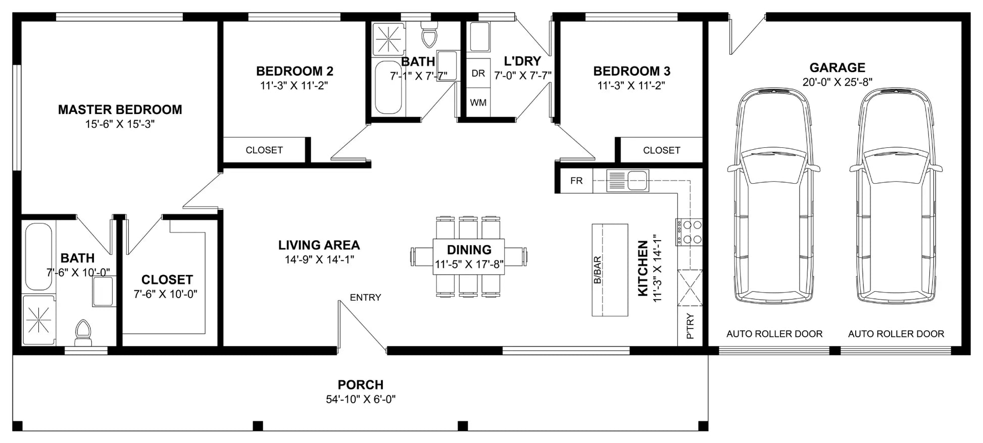
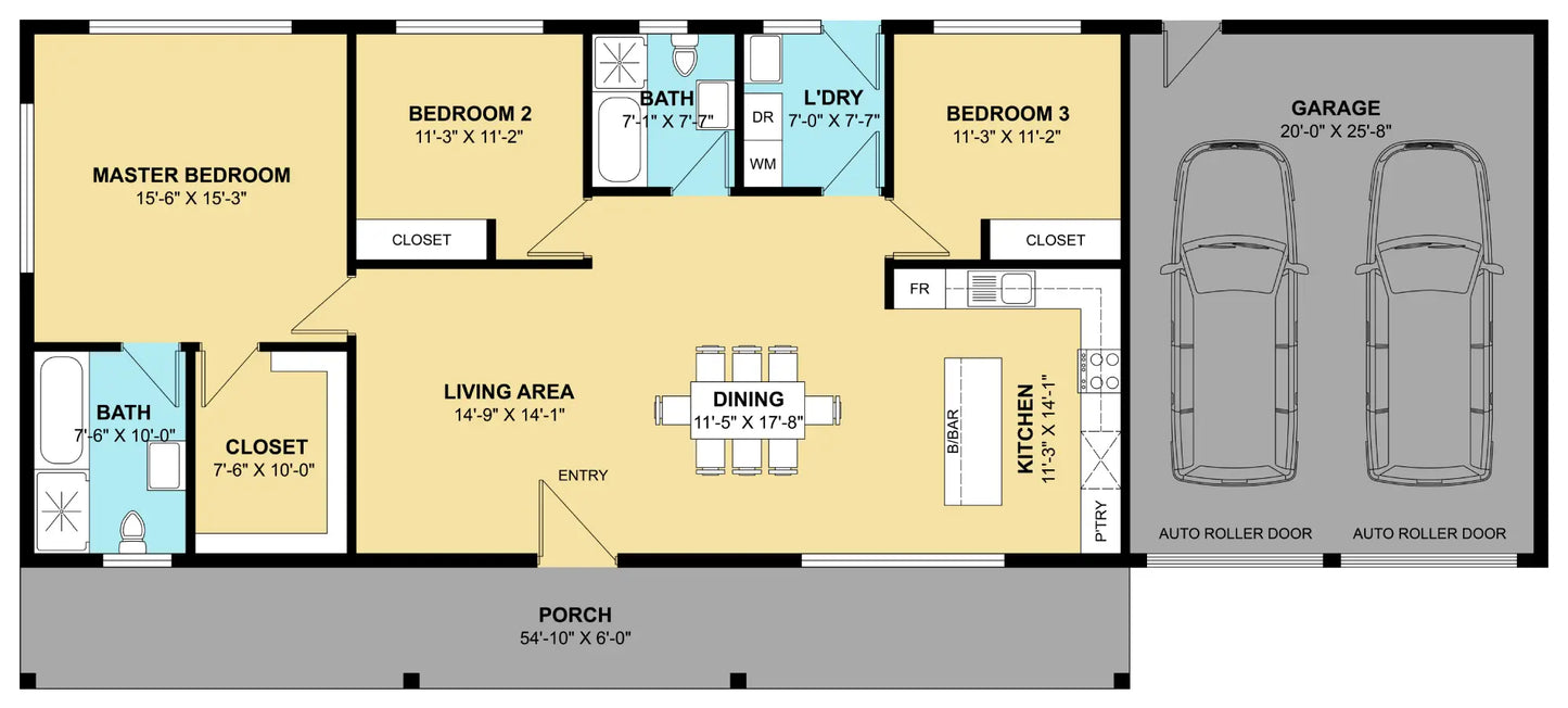
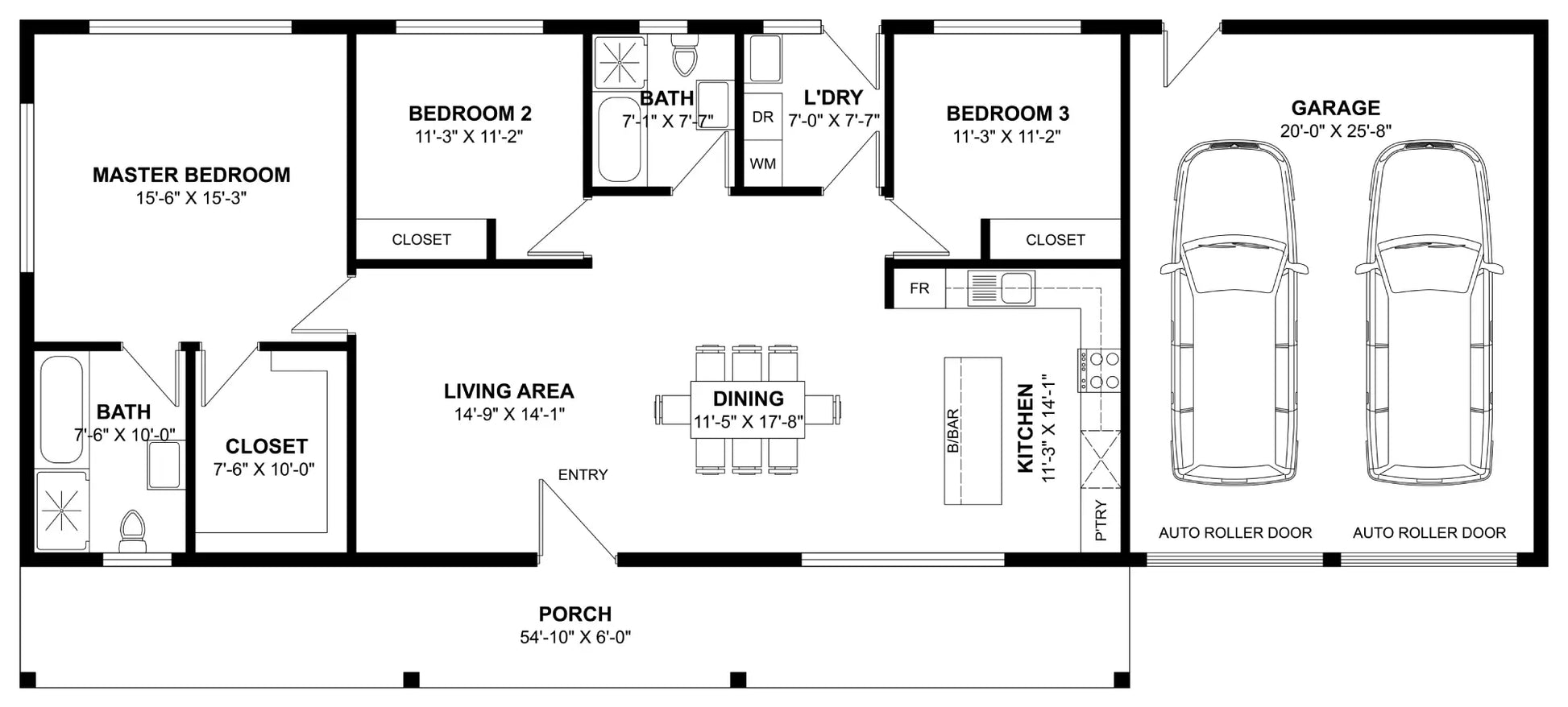
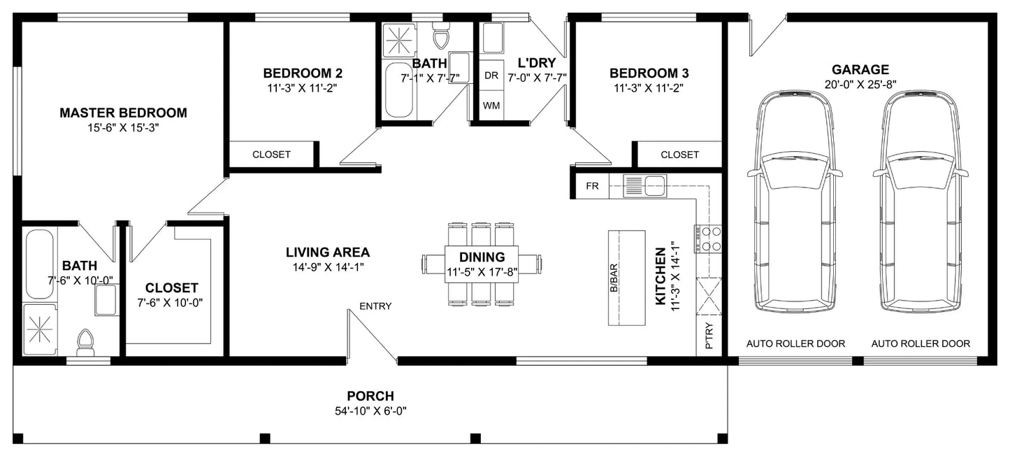
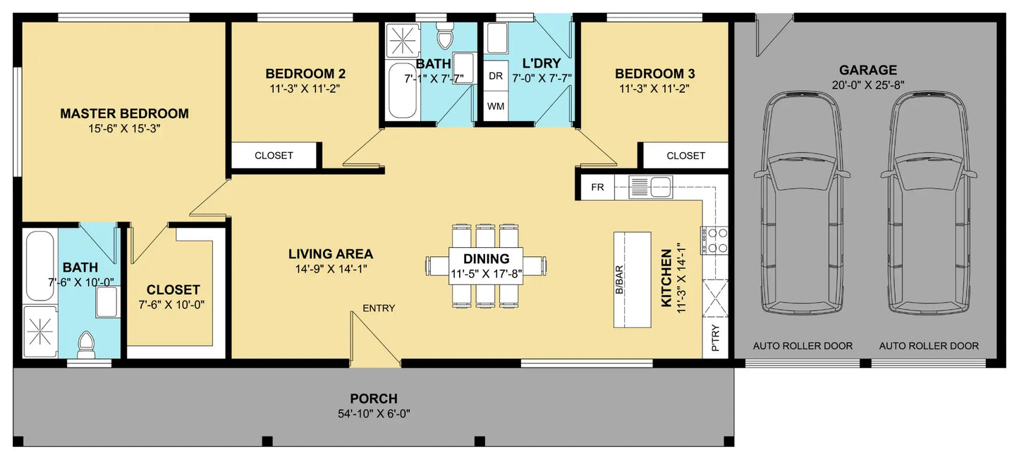
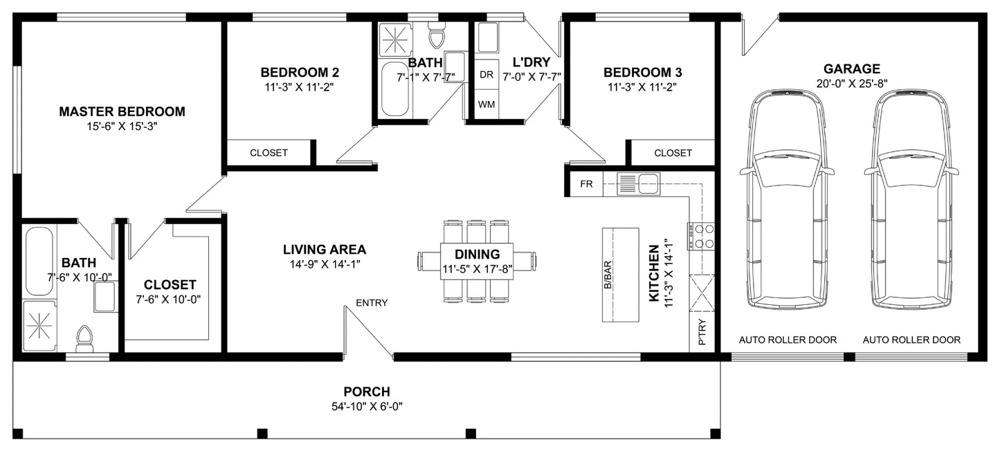
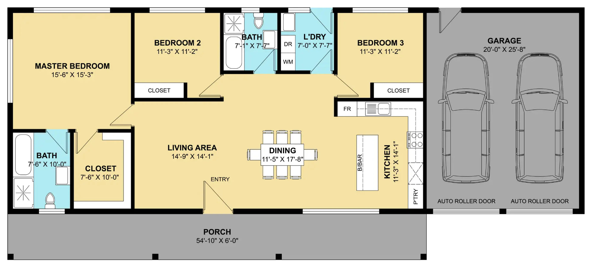
The Denwood Plan offers 2,368 sq. ft. of thoughtfully designed living space within a 76' x 33' layout, blending functionality with modern style.
This barndominium features three comfortable bedrooms and two bathrooms, making it an excellent choice for families or those seeking a well-balanced home.
At its center, the open-concept living area seamlessly connects the kitchen, dining, and family spaces, creating a bright and inviting atmosphere for daily living and entertaining.
A dedicated laundry room adds convenience, while the welcoming front porch extends the living space outdoors.
With a 2-car garage, The Denwood Plan delivers both comfort and practicality.

