My Barndominium Plans
The Ashbeck Plan (VC3033-A)
The Ashbeck Plan (VC3033-A)
Couldn't load pickup availability
Specifications
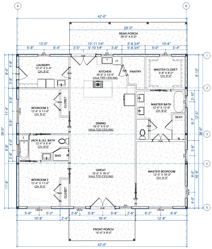
- Dimensions: 42' x 38'
- Living/Heated Area: 1,596 sq. ft.
- Total Area: 1,959 sq. ft.
- 3 Bedrooms
- 2 Bathrooms
About
The Ashbeck Plan offers 1,959 sq. ft. of well-designed living space, blending modern style with everyday functionality.
This barndominium features three comfortable bedrooms, each with its own closet, and two bathrooms for convenience.
At the heart of the home is an open-concept living area that connects the kitchen, dining, and family spaces, creating a warm and inviting atmosphere.
A dedicated laundry room and pantry room add practical touches, while front and rear porches extend the living space outdoors, perfect for relaxation or entertaining.
With its thoughtful layout, The Ashbeck Plan is ideal for families seeking comfort and versatility.
What's Included?
You will receive a PDF download with stock plan documents that include the following:
- Detailed Floor Plan
- Elevations
- Electrical/Lighting Plan
- Foundation Layout Plan
- Pole Layout Plan
- Roof Plan
- Window, Door & Light Schedule
Click here to download a sample plan.
Plan Modifications
Looking to make changes to our plans? Get in contact with us and our team will be in touch within 48 hours with a free personalized quotation.
*All square footages are estimates
Share
What's not included?
What's not included?
- Architectural or Engineering Stamp: To be addressed locally if deemed necessary.
- Site Plan: To be addressed locally when it is deemed necessary.
- Energy calculations: To be addressed locally when they are deemed necessary.
Delivery
Delivery
This product is entirely digital. You will receive the plan via email in PDF format.
Return Policy
Return Policy
All purchases of barndominium house plans are non-refundable and
non-exchangeable due to the digital format of the product. Please ensure
that the chosen plan suits your requirements before making the
purchase.

