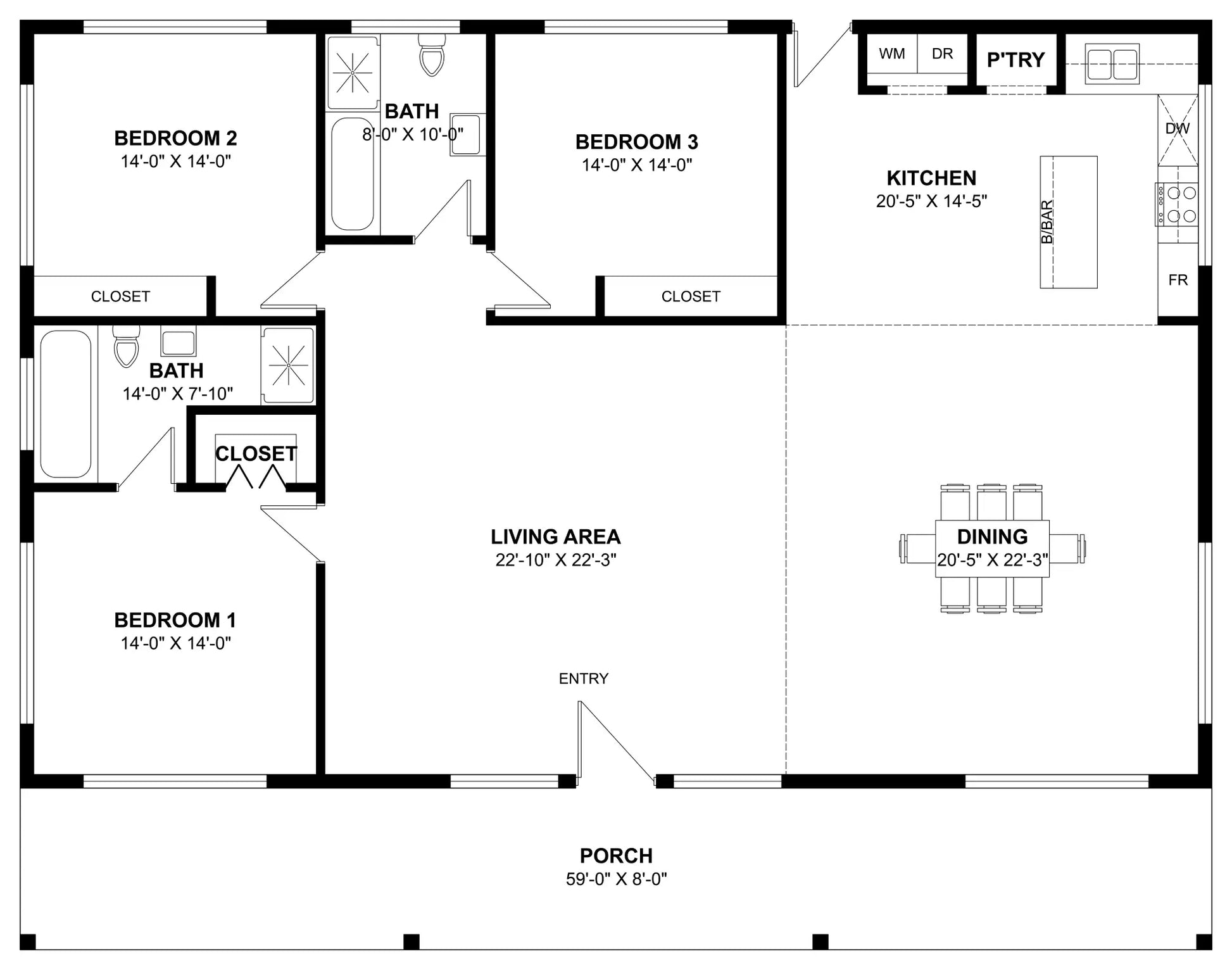
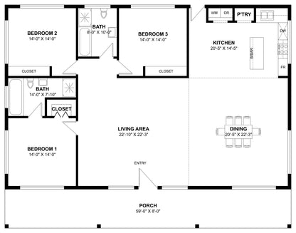
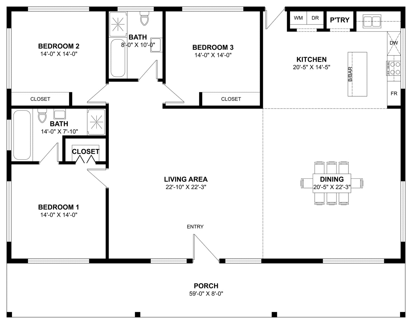
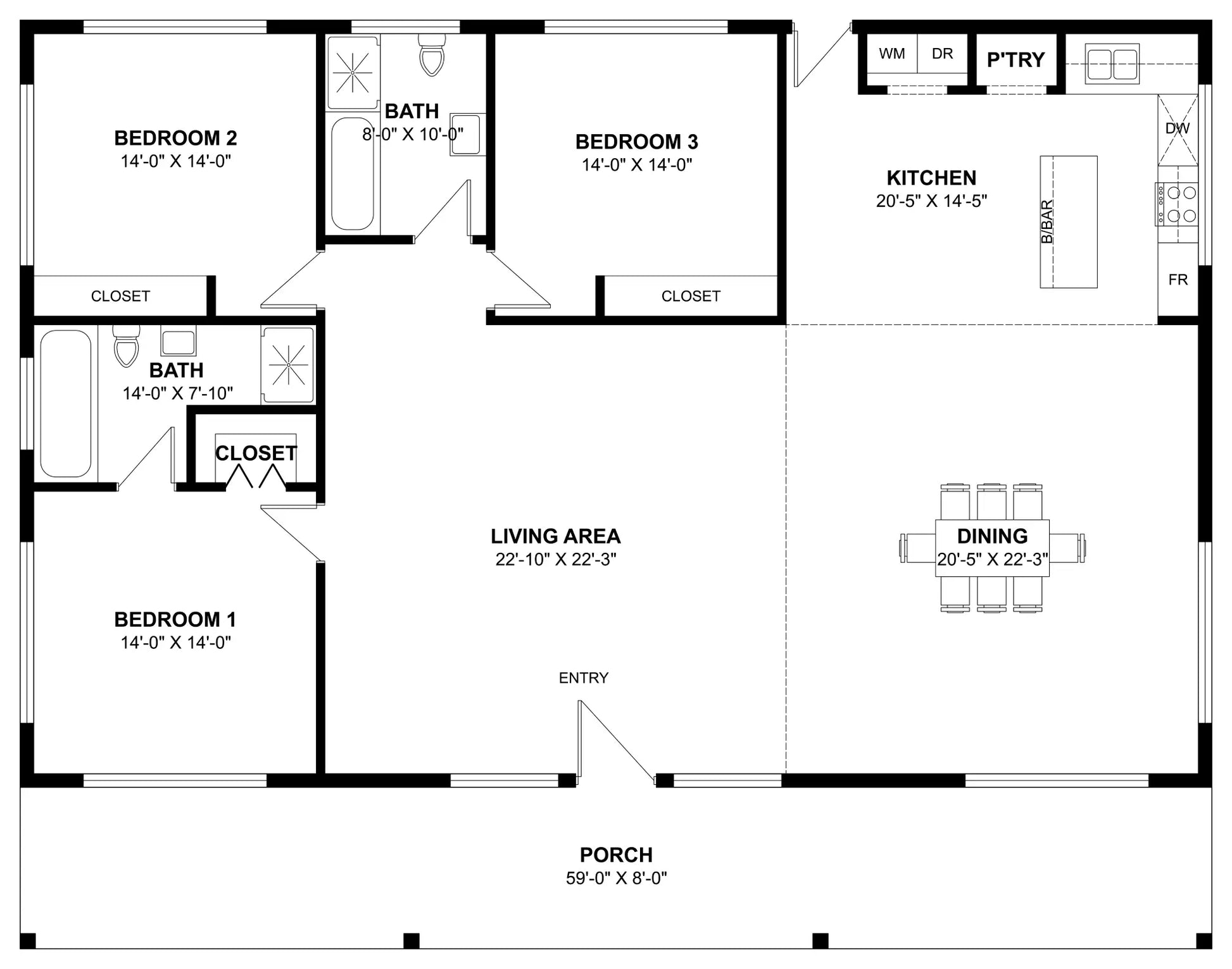
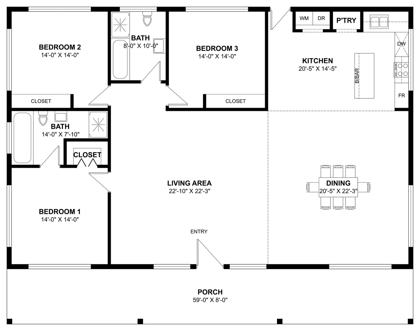
The Addington Plan offers 2,714 sq. ft. of comfortable living space within a 59' x 46' footprint.
Designed with both style and function in mind, this home features three bedrooms, each with its own closet, and two well-appointed bathrooms.
The open-concept living space seamlessly connects the kitchen, dining, and family areas, creating an inviting atmosphere for everyday living and entertaining.
A welcoming front porch enhances curb appeal while providing a relaxing outdoor retreat.
Blending practicality with charm, The Addington Plan is a smart choice for families seeking comfort and convenience.

