My Barndominium Plans
Rowley Ridge Barndominium House Plan (PL-240033)
Rowley Ridge Barndominium House Plan (PL-240033)
Couldn't load pickup availability
Specifications
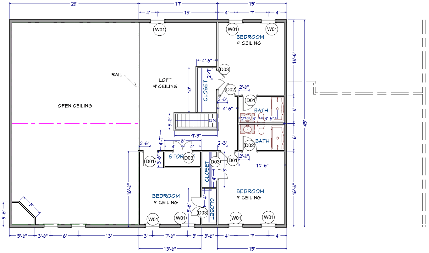
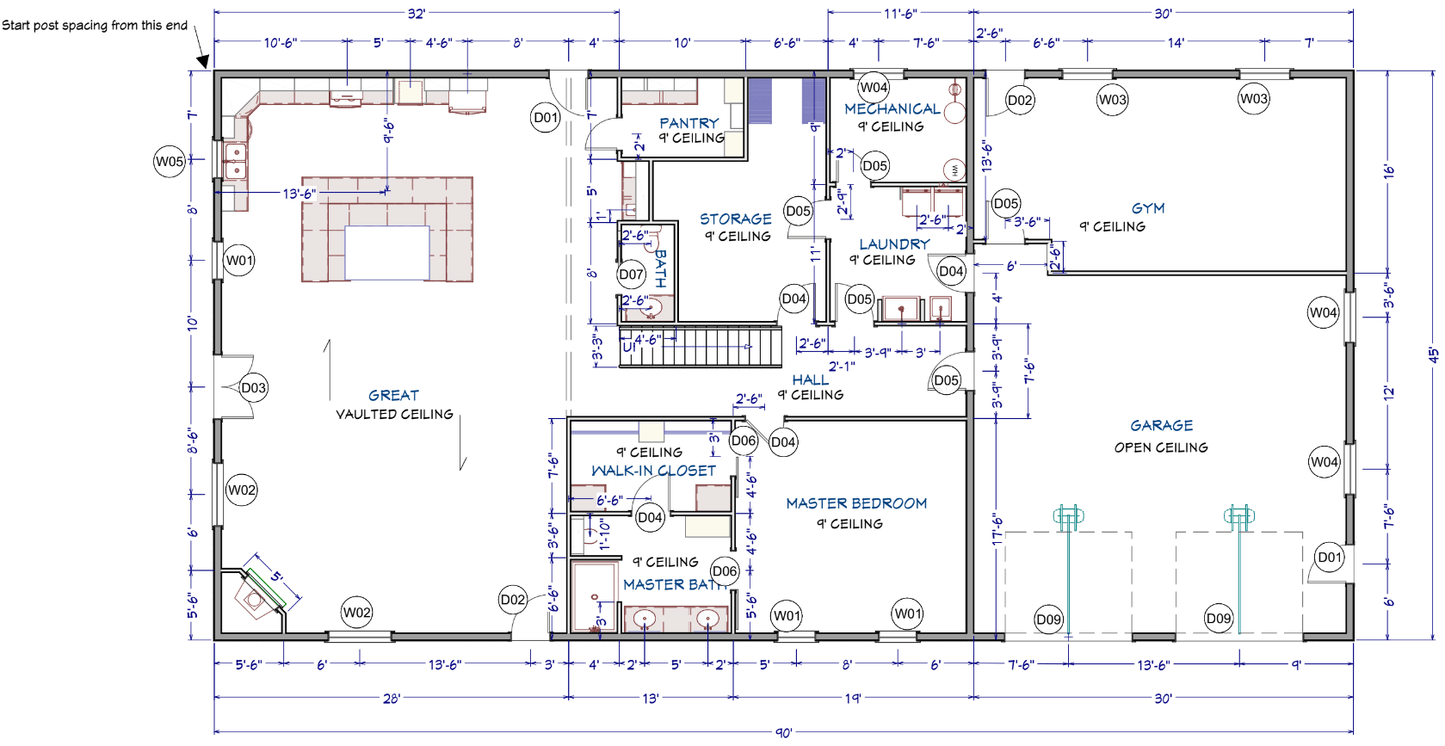
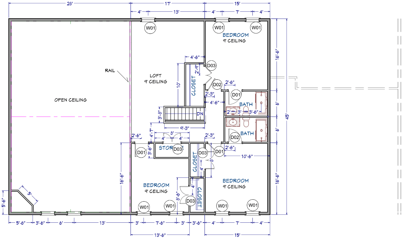
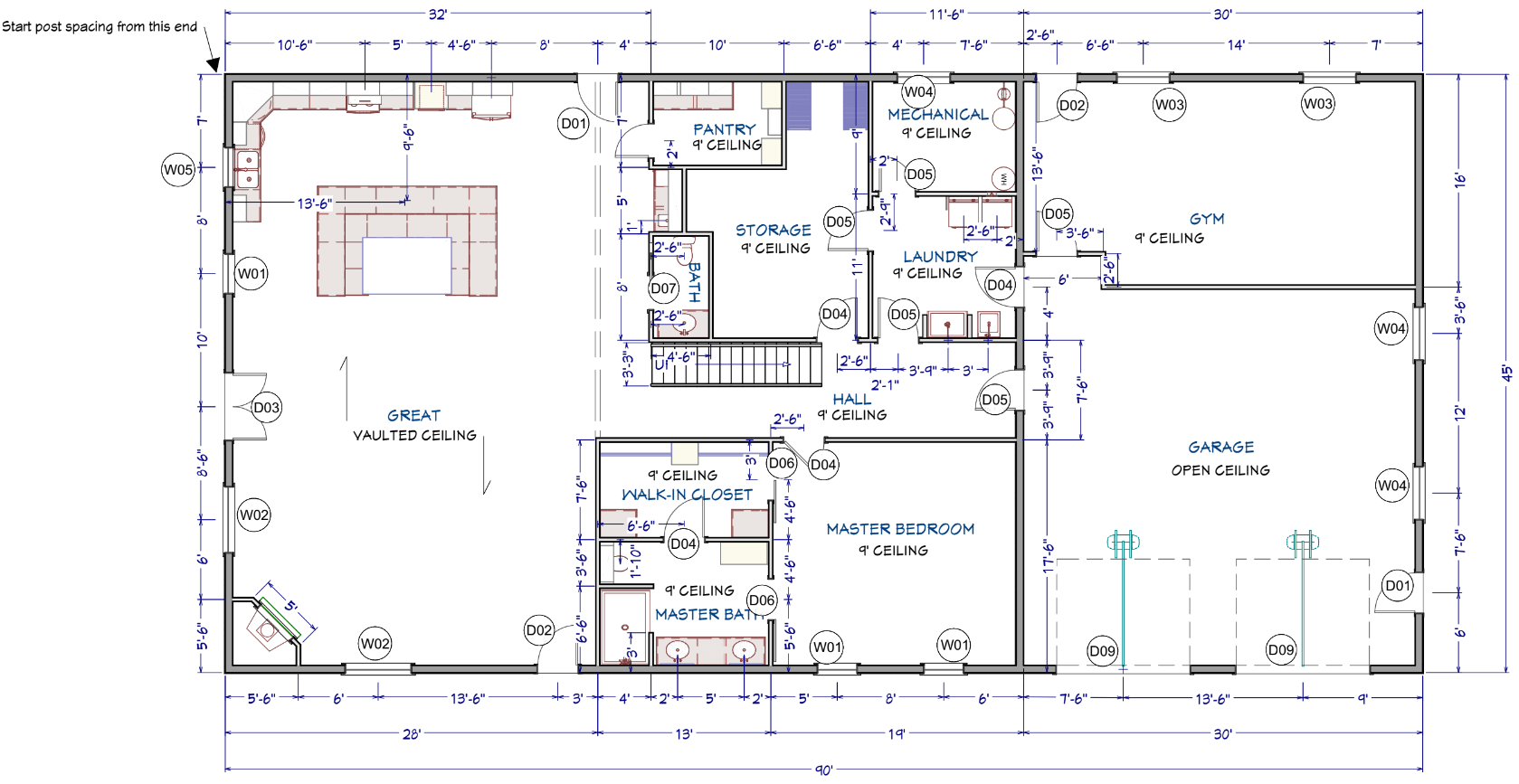
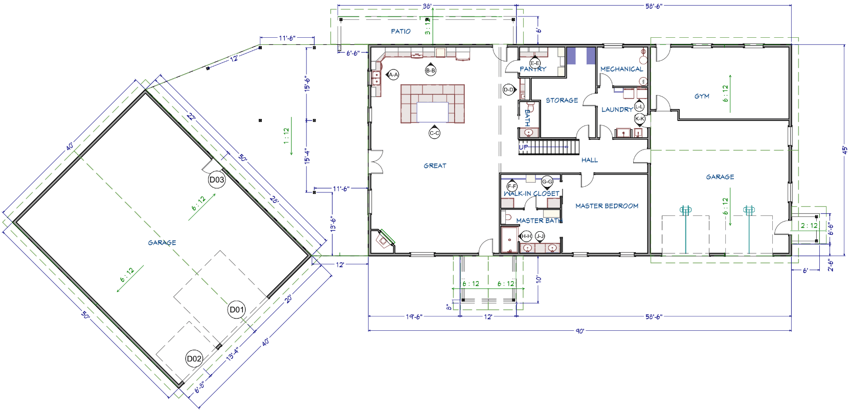
- Dimensions: 90' x 45'
- Living/Heated Area: 4,160 sq. ft.
- 2 Stories
- 4 Bedrooms
- 3.5 Bathrooms
- 4 Garages
- 1 Workshop
About
Introducing the Rowley Ridge Home, a stunning Barndominium floor plan designed for modern living.
Spanning an impressive 90' x 45' area with 4,160 sq. ft. of living space across two stories, this home offers luxury and comfort.
With four spacious bedrooms and 3.5 bathrooms, it's perfect for families.
The two attached garages provide ample parking for up to four cars, while a breezeway connects to the larger garage that also doubles as a workshop.
Enjoy the serene outdoors on front and back porches.
Inside, revel in the open concept living, complete with a pantry, laundry, storage, and gym room.
Experience the epitome of rural elegance with the Rowley Ridge Home.
What's Included?
You will receive a PDF download with stock plan documents that include the following:
- Detailed Floor Plan
- Elevations
- Electrical/Lighting Plan
- Foundation Layout Plan
- Pole Layout Plan
- Roof Plan
- Window, Door & Light Schedule
Click here to download a sample plan.
Plan Modifications
Looking to make changes to our plans? Get in contact with us and our team will be in touch within 48 hours with a free personalized quotation.
*All square footages are estimates
Share
What's not included?
What's not included?
- Architectural or Engineering Stamp: To be addressed locally if deemed necessary.
- Site Plan: To be addressed locally when it is deemed necessary.
- Energy calculations: To be addressed locally when they are deemed necessary.
Delivery
Delivery
This product is entirely digital. You will receive the plan via email in PDF format.
Return Policy
Return Policy
All purchases of barndominium house plans are non-refundable and
non-exchangeable due to the digital format of the product. Please ensure
that the chosen plan suits your requirements before making the
purchase.

