My Barndominium Plans
Nicholstone Barndominium House Plan (PL-101124)
Nicholstone Barndominium House Plan (PL-101124)
Couldn't load pickup availability
Specifications
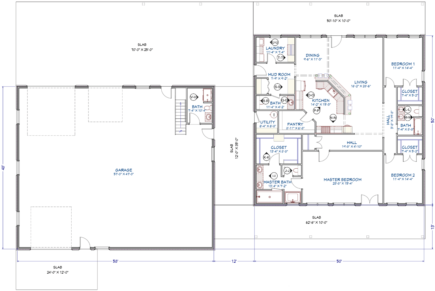
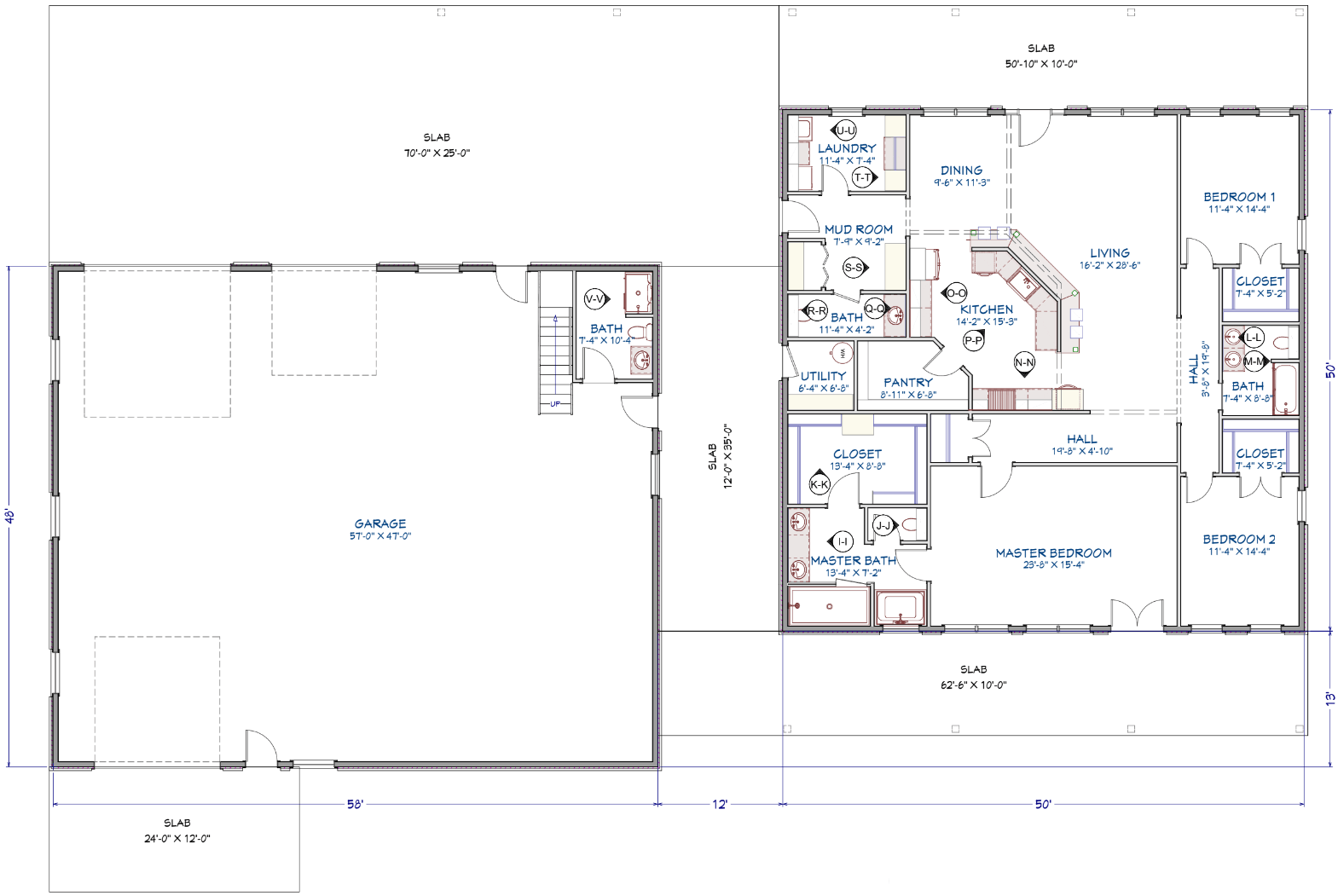
- Dimensions: 50' x 50'
- Living/Heated Area: 2,500 sq. ft.
- 3 Bedrooms
- 2 Full Bathrooms
- 2 Half-Bathrooms
- 3 Garages
About
Introducing the Nicholstone Home, a spacious and modern Barndominium floor plan designed for comfortable living and functionality.
Boasting dimensions of 50' x 50', this 2,500 sq. ft. layout offers ample space for family life.
With 3 bedrooms and 2 full bathrooms, plus 2 convenient half-bathrooms, it caters to both relaxation and practicality.
The 3-car garage includes a bonus half-bathroom above, while a breezeway seamlessly connects the home and garage.
Inside, an open concept living area flows effortlessly, complemented by a pantry, laundry room, mudroom, and utility room.
Experience a harmonious blend of style and convenience in the Nicholstone Home.
What's Included?
You will receive a PDF download with stock plan documents that include the following:
- Detailed Floor Plan
- Elevations
- Electrical/Lighting Plan
- Foundation Layout Plan
- Pole Layout Plan
- Roof Plan
- Window, Door & Light Schedule
Click here to download a sample plan.
Plan Modifications
Looking to make changes to our plans? Get in contact with us and our team will be in touch within 48 hours with a free personalized quotation.
*All square footages are estimates
Share
What's not included?
What's not included?
- Architectural or Engineering Stamp: To be addressed locally if deemed necessary.
- Site Plan: To be addressed locally when it is deemed necessary.
- Energy calculations: To be addressed locally when they are deemed necessary.
Delivery
Delivery
This product is entirely digital. You will receive the plan via email in PDF format.
Return Policy
Return Policy
All purchases of barndominium house plans are non-refundable and
non-exchangeable due to the digital format of the product. Please ensure
that the chosen plan suits your requirements before making the
purchase.










