My Barndominium Plans
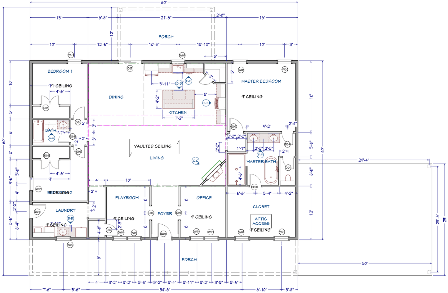
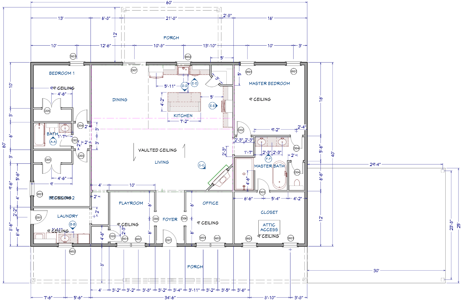
Neasewood Barndominium House Plan (PL-240052)
Neasewood Barndominium House Plan (PL-240052)
Couldn't load pickup availability
Specifications
- Dimensions: 40' x 60'
- Living/Heated Area: 2,400 sq. ft.
- 3 Bedrooms
- 2 Bathrooms
About
Welcome to the Neasewood Home, a spacious and inviting Barndominium floor plan designed for modern living.
With dimensions of 40' x 60', this home boasts a generous 2,400 sq. ft. living area, comprising three bedrooms and two bathrooms.
Enjoy the seamless flow of the open concept living space, accentuated by vaulted ceilings that create an airy ambiance.
Step outside onto the front and back porches, ideal for relaxation and entertaining.
Additional amenities include two back porches, a dedicated laundry room, a versatile playroom for kids, and a functional office space.
Experience comfort, functionality, and style in the Neasewood Home.
What's Included?
You will receive a PDF download with stock plan documents that include the following:
- Detailed Floor Plan
- Elevations
- Electrical/Lighting Plan
- Foundation Layout Plan
- Pole Layout Plan
- Roof Plan
- Window, Door & Light Schedule
Click here to download a sample plan.
Plan Modifications
Looking to make changes to our plans? Get in contact with us and our team will be in touch within 48 hours with a free personalized quotation.
*All square footages are estimates
Share
What's not included?
What's not included?
- Architectural or Engineering Stamp: To be addressed locally if deemed necessary.
- Site Plan: To be addressed locally when it is deemed necessary.
- Energy calculations: To be addressed locally when they are deemed necessary.
Delivery
Delivery
This product is entirely digital. You will receive the plan via email in PDF format.
Return Policy
Return Policy
All purchases of barndominium house plans are non-refundable and
non-exchangeable due to the digital format of the product. Please ensure
that the chosen plan suits your requirements before making the
purchase.






