My Barndominium Plans
Leawood Barndominium House Plan (PL-240043)
Leawood Barndominium House Plan (PL-240043)
Couldn't load pickup availability
Specifications
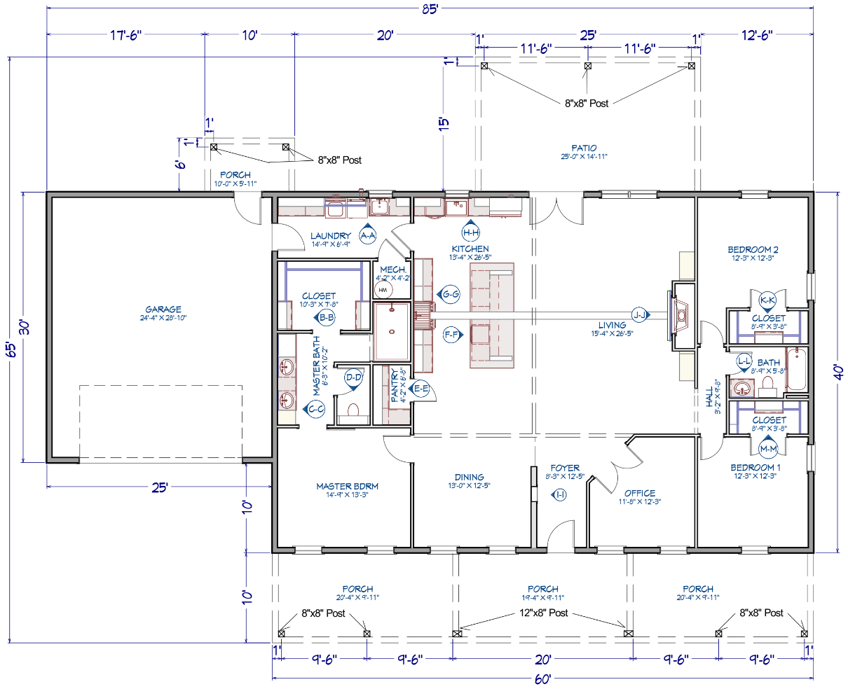
- Dimensions: 60' x 40'
- Living/Heated Area: 2,400 sq. ft.
- 3 Bedrooms
- 2 Bathrooms
- 2 Garages
About
Discover the epitome of modern country living with the Leawood Home.
Spanning 60' x 40', this Barndominium floor plan offers 2,400 sq. ft. of spacious elegance.
Embrace tranquility in its 3 bedrooms and 2 bathrooms, complemented by a generous living area.
A haven for car enthusiasts, it features a 2-car garage with an area of 750 sq. ft. for ample vehicle storage.
Enjoy the serenity of outdoor living with a large front porch and two back porches, perfect for soaking in panoramic views.
Inside, revel in the seamless flow of the open-concept living space, complete with a large kitchen, laundry room, mech room, and an office, ensuring both comfort and functionality.
What's Included?
You will receive a PDF download with stock plan documents that include the following:
- Detailed Floor Plan
- Elevations
- Electrical/Lighting Plan
- Foundation Layout Plan
- Pole Layout Plan
- Roof Plan
- Window, Door & Light Schedule
Click here to download a sample plan.
Plan Modifications
Looking to make changes to our plans? Get in contact with us and our team will be in touch within 48 hours with a free personalized quotation.
*All square footages are estimates
Share
What's not included?
What's not included?
- Architectural or Engineering Stamp: To be addressed locally if deemed necessary.
- Site Plan: To be addressed locally when it is deemed necessary.
- Energy calculations: To be addressed locally when they are deemed necessary.
Delivery
Delivery
This product is entirely digital. You will receive the plan via email in PDF format.
Return Policy
Return Policy
All purchases of barndominium house plans are non-refundable and
non-exchangeable due to the digital format of the product. Please ensure
that the chosen plan suits your requirements before making the
purchase.







