My Barndominium Plans
Kothewood Barndominium House Plan (PL-180022)
Kothewood Barndominium House Plan (PL-180022)
Couldn't load pickup availability
Specifications
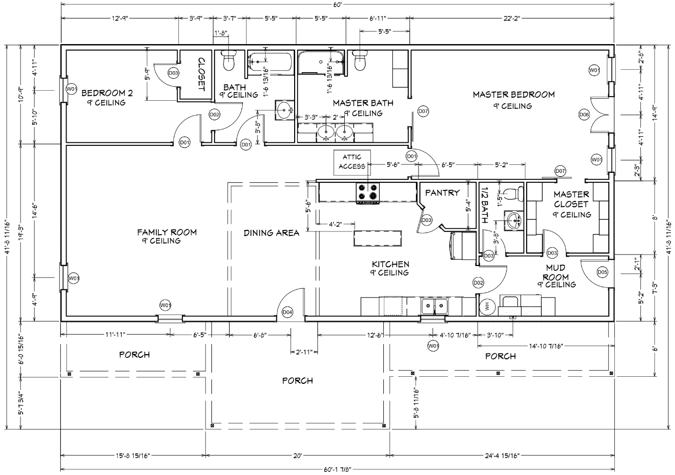
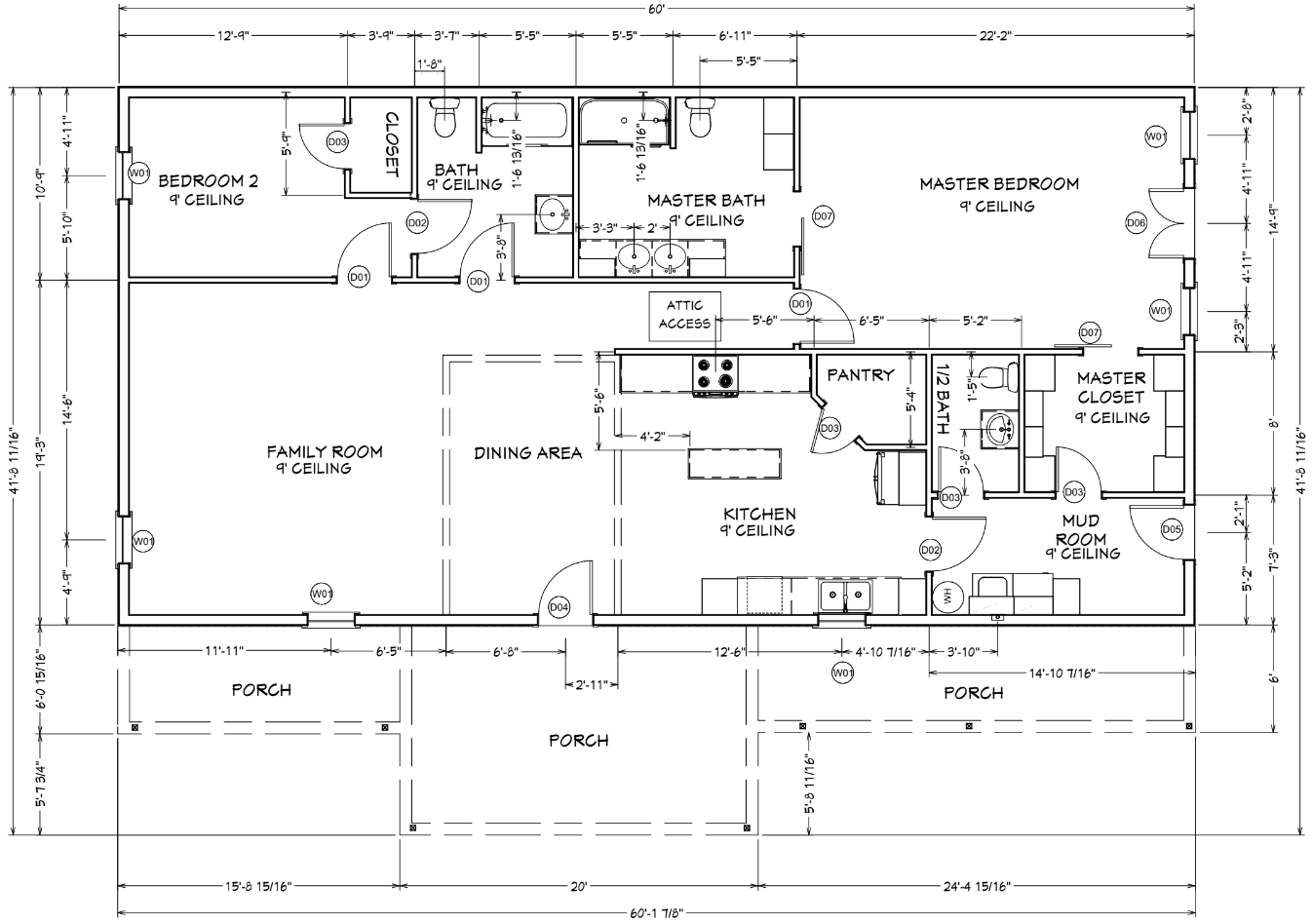
- Dimensions: 40' x 30'
- Living/Heated Area: 1,800 sq. ft.
- 2 Bedrooms
- 2 Bathrooms
About
Introducing the Kothewood Home, a spacious 60' x 30' Barndominium floor plan designed for modern living.
Boasting 1,800 sq. ft. of living space, this thoughtfully crafted layout features 2 bedrooms and 2 bathrooms, perfect for comfortable living.
The heart of the home is its open concept living area seamlessly connecting the living, dining, and kitchen areas, complete with a pantry, to the inviting living space.
A wide front porch offers an ideal spot for relaxation and outdoor enjoyment.
Practical amenities include a convenient laundry/mud room and attic access for additional storage.
Experience the perfect blend of functionality and style in the Kothewood Home.
What's Included?
You will receive a PDF download with stock plan documents that include the following:
- Detailed Floor Plan
- Elevations
- Electrical/Lighting Plan
- Foundation Layout Plan
- Pole Layout Plan
- Roof Plan
- Window, Door & Light Schedule
Click here to download a sample plan.
Plan Modifications
Looking to make changes to our plans? Get in contact with us and our team will be in touch within 48 hours with a free personalized quotation.
*All square footages are estimates
Share
What's not included?
What's not included?
- Architectural or Engineering Stamp: To be addressed locally if deemed necessary.
- Site Plan: To be addressed locally when it is deemed necessary.
- Energy calculations: To be addressed locally when they are deemed necessary.
Delivery
Delivery
This product is entirely digital. You will receive the plan via email in PDF format.
Return Policy
Return Policy
All purchases of barndominium house plans are non-refundable and
non-exchangeable due to the digital format of the product. Please ensure
that the chosen plan suits your requirements before making the
purchase.





