My Barndominium Plans
Jackstone Barndominium House Plan (PL-220124)
Jackstone Barndominium House Plan (PL-220124)
Couldn't load pickup availability
Specifications
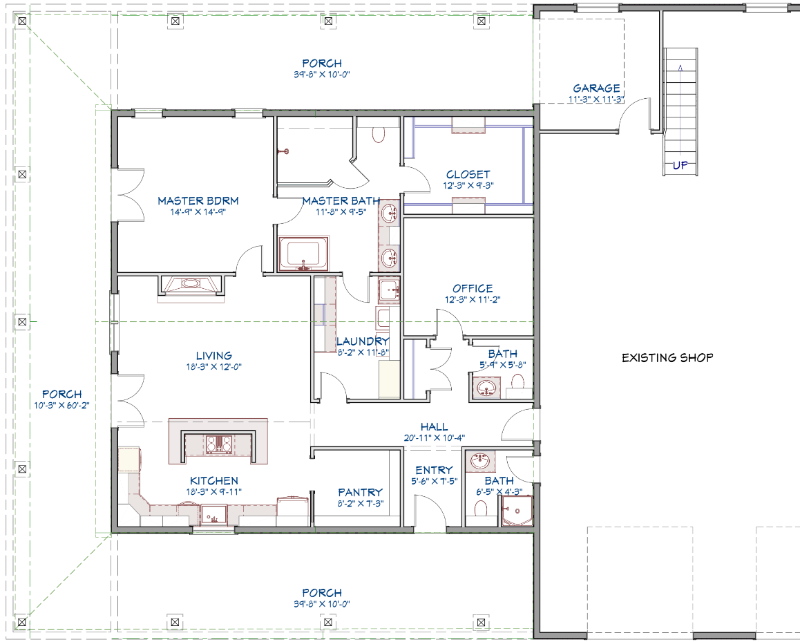
- Dimensions: 40' x 40'
- Living/Heated Area: 1,600 sq. ft.
- 1 Bedroom
- 2.5 Bathrooms
About
Introducing the Jackstone Home, a spacious Barndominium floor plan designed for modern living. Spanning 40' x 40', this 1,600 sq. ft. home boasts versatility and comfort.
With a thoughtfully crafted layout, it features 1 bedroom and 2.5 bathrooms, offering ample space for relaxation and functionality.
Embrace the charm of country living with its inviting wraparound porch, perfect for enjoying serene moments.
The open concept living area seamlessly blends with a well-equipped kitchen, ideal for entertaining.
Additional highlights include a garage/shop, laundry room, and an office room convertible to an extra bedroom, ensuring flexibility to suit your lifestyle needs.
What's Included?
You will receive a PDF download with stock plan documents that include the following:
- Detailed Floor Plan
- Elevations
- Electrical/Lighting Plan
- Foundation Layout Plan
- Pole Layout Plan
- Roof Plan
- Window, Door & Light Schedule
Click here to download a sample plan.
Plan Modifications
Looking to make changes to our plans? Get in contact with us and our team will be in touch within 48 hours with a free personalized quotation.
*All square footages are estimates
Share
What's not included?
What's not included?
- Architectural or Engineering Stamp: To be addressed locally if deemed necessary.
- Site Plan: To be addressed locally when it is deemed necessary.
- Energy calculations: To be addressed locally when they are deemed necessary.
Delivery
Delivery
This product is entirely digital. You will receive the plan via email in PDF format.
Return Policy
Return Policy
All purchases of barndominium house plans are non-refundable and
non-exchangeable due to the digital format of the product. Please ensure
that the chosen plan suits your requirements before making the
purchase.





