My Barndominium Plans
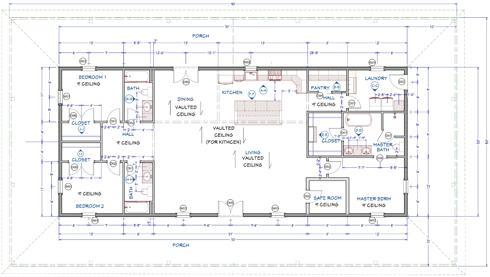
Henewood Barndominium House Plan (PL-245033)
Henewood Barndominium House Plan (PL-245033)
Couldn't load pickup availability
Specifications
- Dimensions: 70' x 30'
- Living/Heated Area: 2,100 sq. ft.
- 3 Bedrooms
- 3 Bathrooms
About
Introducing the Henewood Home – where rustic charm meets modern living.
Spanning 70' x 30', this spacious barndominium boasts 2,100 sq. ft. of living space.
With 3 bedrooms and 3 bathrooms, it offers ample room for family and guests.
Entertain effortlessly in the open concept living area, complemented by a large wraparound porch ideal for relaxing evenings.
The pantry room ensures ample storage, while a dedicated laundry room adds convenience.
Safety is paramount with a built-in safe room.
Experience the perfect blend of style and functionality in this thoughtfully designed retreat, embodying the essence of country living with contemporary comforts.
What's Included?
You will receive a PDF download with stock plan documents that include the following:
- Detailed Floor Plan
- Elevations
- Electrical/Lighting Plan
- Foundation Layout Plan
- Pole Layout Plan
- Roof Plan
- Window, Door & Light Schedule
Click here to download a sample plan.
Plan Modifications
Looking to make changes to our plans? Get in contact with us and our team will be in touch within 48 hours with a free personalized quotation.
*All square footages are estimates
Share
What's not included?
What's not included?
- Architectural or Engineering Stamp: To be addressed locally if deemed necessary.
- Site Plan: To be addressed locally when it is deemed necessary.
- Energy calculations: To be addressed locally when they are deemed necessary.
Delivery
Delivery
This product is entirely digital. You will receive the plan via email in PDF format.
Return Policy
Return Policy
All purchases of barndominium house plans are non-refundable and
non-exchangeable due to the digital format of the product. Please ensure
that the chosen plan suits your requirements before making the
purchase.






