My Barndominium Plans
Hayfield Barndominium House Plan (PL-00324)
Hayfield Barndominium House Plan (PL-00324)
Couldn't load pickup availability
Specifications
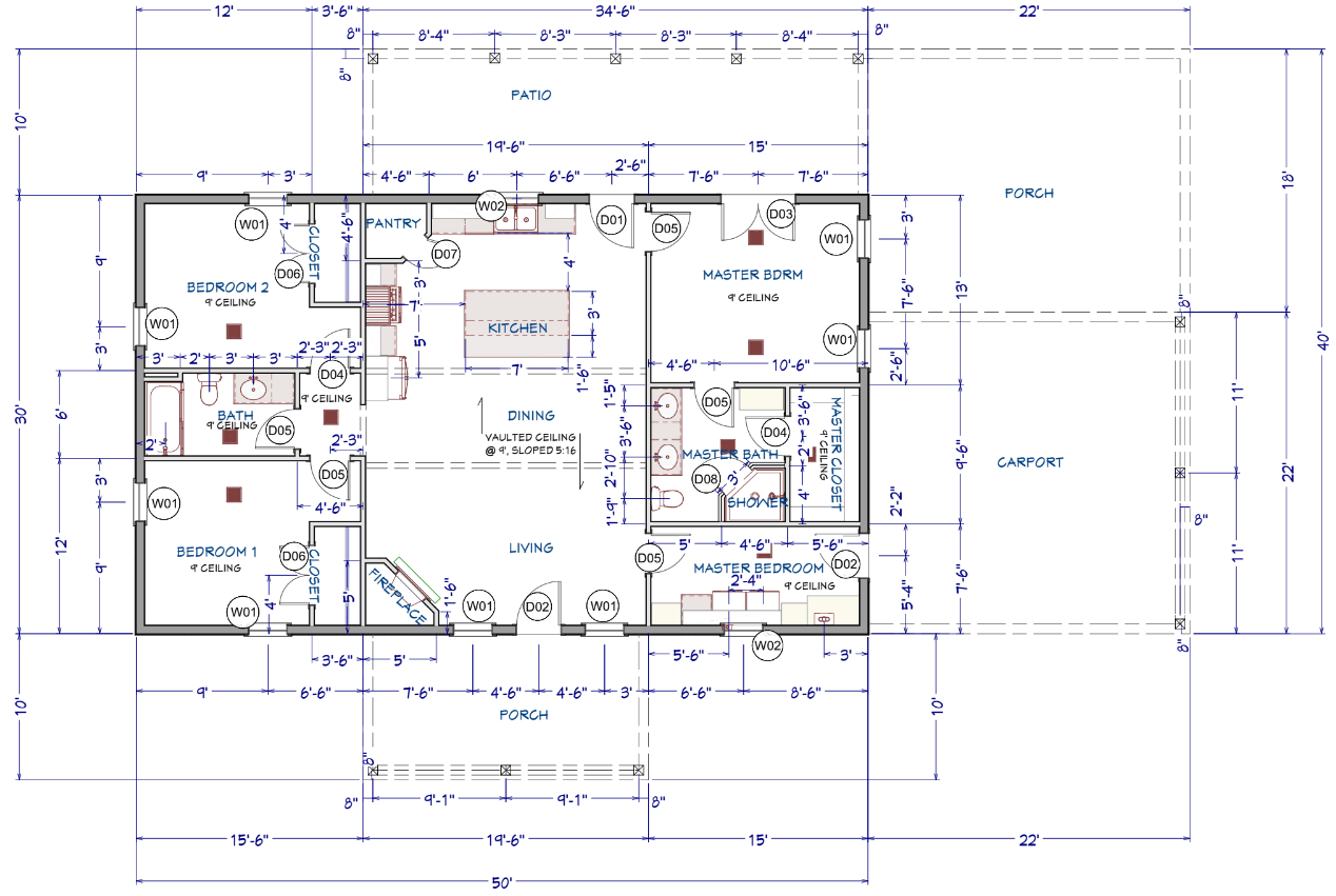
- Dimensions: 30' x 50'
- Living/Heated Area: 1,500 sq. ft.
- 3 Bedrooms
- 2 Bathrooms
- 1 Carport
About
Introducing the Hayfield Home, a spacious and inviting Barndominium floor plan designed for comfortable living.
With dimensions of 30' x 50', this thoughtfully crafted layout boasts a generous 1,500 sq. ft. of living space.
Featuring three bedrooms and two bathrooms, it's perfect for families seeking modern charm and functionality.
The home's standout features include a convenient 22' x 22' carport, gabled porches ideal for outdoor relaxation, and an open-concept living area that seamlessly connects the kitchen, complete with a corner pantry, and dining spaces.
Retreat to the sizable master bedroom, complete with a large closet, ensuring ample storage for all your needs.
What's Included?
You will receive a PDF download with stock plan documents that include the following:
- Detailed Floor Plan
- Elevations
- Electrical/Lighting Plan
- Foundation Layout Plan
- Pole Layout Plan
- Roof Plan
- Window, Door & Light Schedule
Click here to download a sample plan.
Plan Modifications
Looking to make changes to our plans? Get in contact with us and our team will be in touch within 48 hours with a free personalized quotation.
*All square footages are estimates
Share
What's not included?
What's not included?
- Architectural or Engineering Stamp: To be addressed locally if deemed necessary.
- Site Plan: To be addressed locally when it is deemed necessary.
- Energy calculations: To be addressed locally when they are deemed necessary.
Delivery
Delivery
This product is entirely digital. You will receive the plan via email in PDF format.
Return Policy
Return Policy
All purchases of barndominium house plans are non-refundable and
non-exchangeable due to the digital format of the product. Please ensure
that the chosen plan suits your requirements before making the
purchase.




