My Barndominium Plans
Harkenwood Barndominium House Plan (PL-200032)
Harkenwood Barndominium House Plan (PL-200032)
Couldn't load pickup availability
Specifications
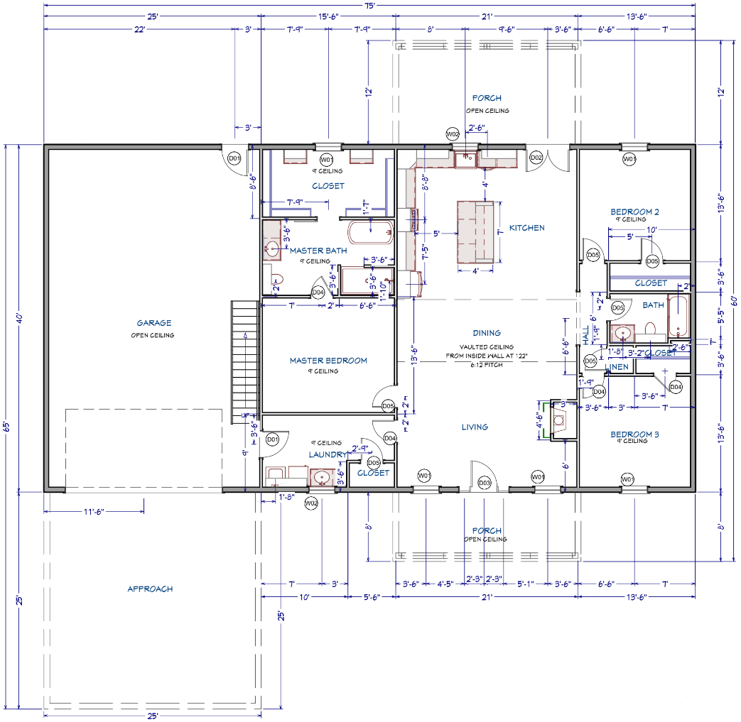
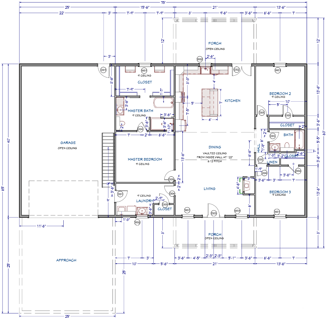
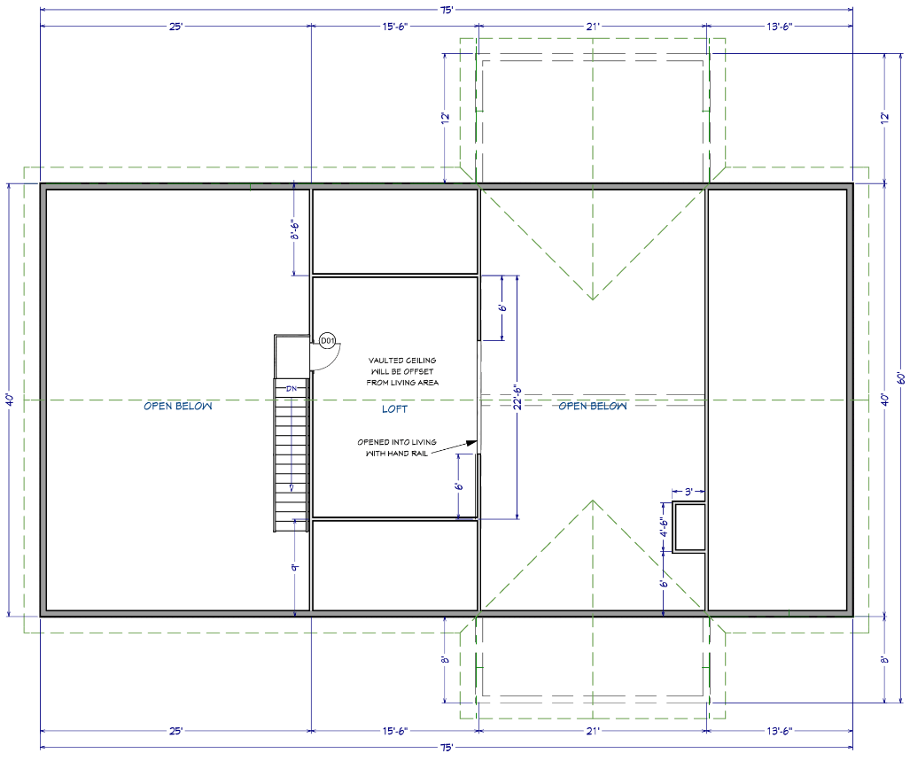
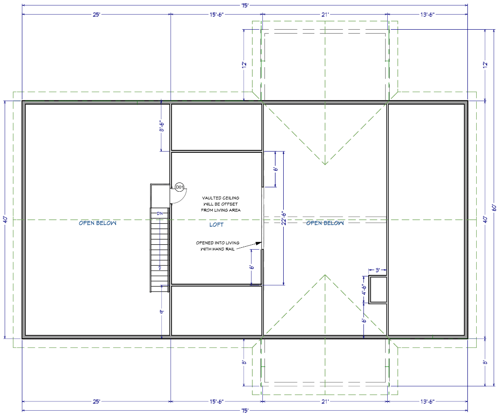
- Dimensions: 75' x 40'
- Living/Heated Area: 2,000 sq. ft.
- 3 Bedrooms
- 2 Bathrooms
- 1 Garage
About
This is the Harkenwood Home, a masterpiece of modern living nestled within a spacious 75' x 40' layout.
Boasting 2,000 sq. ft. of meticulously crafted living space, this barndominium beckons with three generous bedrooms and two luxuriously appointed bathrooms.
The heart of the home is its expansive open-concept living area, adorned with a soaring vaulted ceiling, perfect for gatherings and relaxation alike.
The master suite indulges with a sizable closet for ample storage, while a dedicated laundry room ensures convenience.
Adding to its allure is a capacious 1,000 sq. ft. garage, completing the perfect blend of comfort and functionality in rural living.
What's Included?
You will receive a PDF download with stock plan documents that include the following:
- Detailed Floor Plan
- Elevations
- Electrical/Lighting Plan
- Foundation Layout Plan
- Pole Layout Plan
- Roof Plan
- Window, Door & Light Schedule
Click here to download a sample plan.
Plan Modifications
Looking to make changes to our plans? Get in contact with us and our team will be in touch within 48 hours with a free personalized quotation.
*All square footages are estimates
Share
What's not included?
What's not included?
- Architectural or Engineering Stamp: To be addressed locally if deemed necessary.
- Site Plan: To be addressed locally when it is deemed necessary.
- Energy calculations: To be addressed locally when they are deemed necessary.
Delivery
Delivery
This product is entirely digital. You will receive the plan via email in PDF format.
Return Policy
Return Policy
All purchases of barndominium house plans are non-refundable and
non-exchangeable due to the digital format of the product. Please ensure
that the chosen plan suits your requirements before making the
purchase.





