My Barndominium Plans
Gourwood Barndominium House Plan (PL-101824)
Gourwood Barndominium House Plan (PL-101824)
Couldn't load pickup availability
Specifications
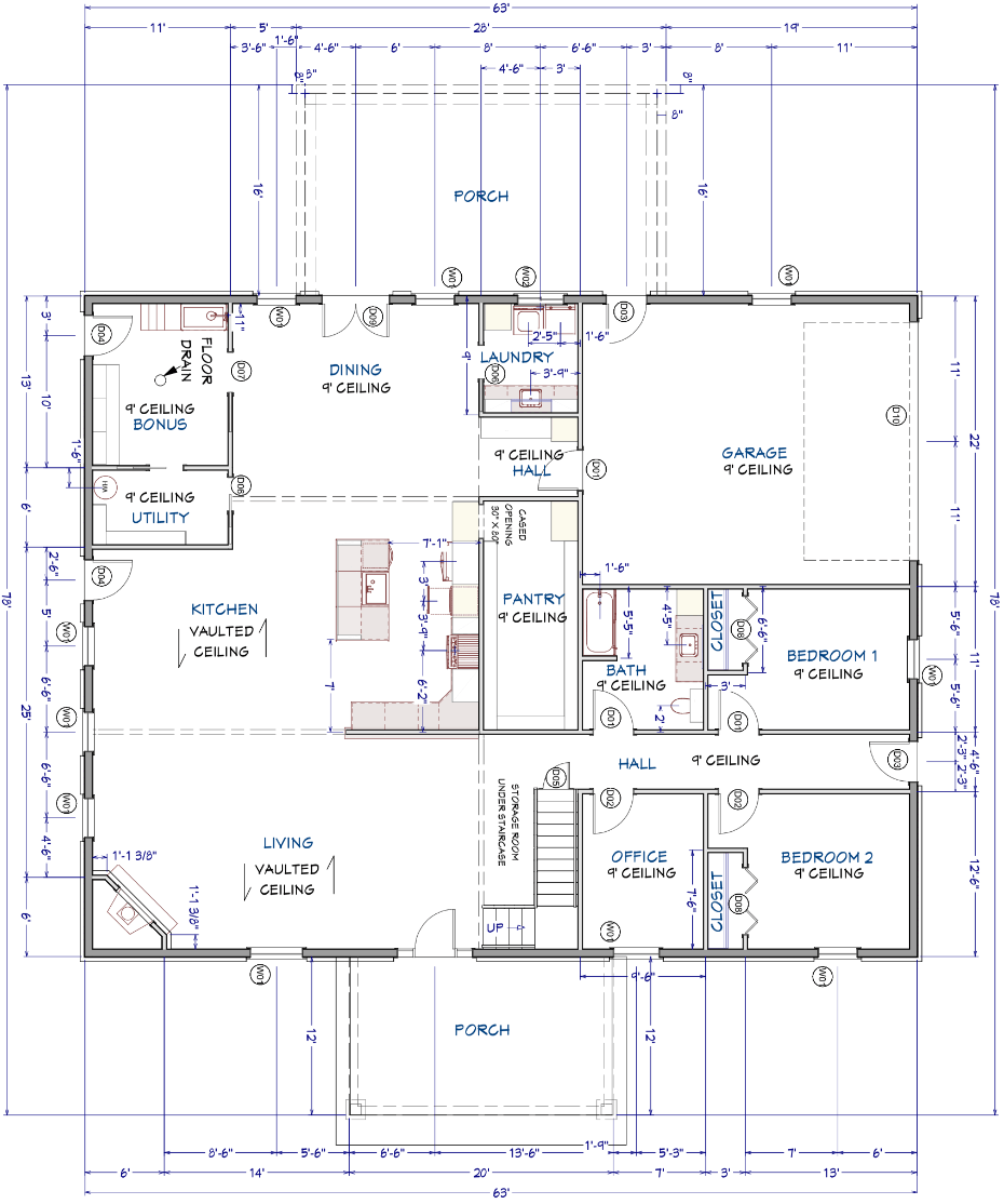
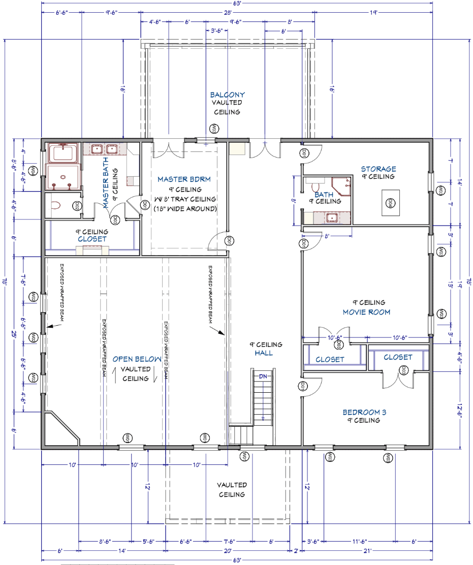
- Dimensions: 63' x 50'
- Living/Heated Area: 5,379 sq. ft.
- 2 Stories
- 4 Bedrooms
- 3 Bathrooms
- 3 Garages
About
Introducing the exquisite Gourwood Home, a captivating blend of rustic charm and modern elegance.
This spacious 5,739 sq. ft. Barndominium boasts a thoughtful layout across two stories.
With four bedrooms and three bathrooms, it offers ample space for comfortable living.
The open-concept design seamlessly connects the living, dining, and kitchen areas, ideal for entertaining.
Enjoy serene moments on the front and back porches or retreat to the balcony on the second floor.
Additional highlights include two attached garages accommodating up to three cars, a pantry, laundry room, office, storage, and a movie room.
Elevate your lifestyle with the Gourwood Home.
What's Included?
You will receive a PDF download with stock plan documents that include the following:
- Detailed Floor Plan
- Elevations
- Electrical/Lighting Plan
- Foundation Layout Plan
- Pole Layout Plan
- Roof Plan
- Window, Door & Light Schedule
Click here to download a sample plan.
Plan Modifications
Looking to make changes to our plans? Get in contact with us and our team will be in touch within 48 hours with a free personalized quotation.
*All square footages are estimates
Share
What's not included?
What's not included?
- Architectural or Engineering Stamp: To be addressed locally if deemed necessary.
- Site Plan: To be addressed locally when it is deemed necessary.
- Energy calculations: To be addressed locally when they are deemed necessary.
Delivery
Delivery
This product is entirely digital. You will receive the plan via email in PDF format.
Return Policy
Return Policy
All purchases of barndominium house plans are non-refundable and
non-exchangeable due to the digital format of the product. Please ensure
that the chosen plan suits your requirements before making the
purchase.







