My Barndominium Plans
Elwood Barndominium House Plan (PL-138032)
Elwood Barndominium House Plan (PL-138032)
Couldn't load pickup availability
Specifications
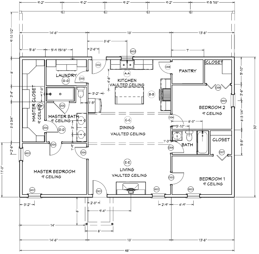
- Dimensions: 46' x 30'
- Living/Heated Area: 1,380 sq. ft.
- 3 Bedrooms
- 2 Bathrooms
About
Welcome to the Elwood Home Barndominium floor plan, designed for comfort and functionality.
With dimensions of 46' x 30', this spacious layout boasts 1,380 sq. ft. of living area.
Ideal for families, it offers three bedrooms and two bathrooms, ensuring ample space for everyone.
The highlight of this plan is its open concept living area, fostering a sense of togetherness and flexibility.
Additionally, it includes convenient features such as a dedicated laundry room and pantry, enhancing the home's efficiency.
Experience the perfect blend of modern design and rural charm with the Elwood Home, where every detail is crafted for comfortable living.
What's Included?
You will receive a PDF download with stock plan documents that include the following:
- Detailed Floor Plan
- Elevations
- Electrical/Lighting Plan
- Foundation Layout Plan
- Pole Layout Plan
- Roof Plan
- Window, Door & Light Schedule
Click here to download a sample plan.
Plan Modifications
Looking to make changes to our plans? Get in contact with us and our team will be in touch within 48 hours with a free personalized quotation.
*All square footages are estimates
Share
What's not included?
What's not included?
- Architectural or Engineering Stamp: To be addressed locally if deemed necessary.
- Site Plan: To be addressed locally when it is deemed necessary.
- Energy calculations: To be addressed locally when they are deemed necessary.
Delivery
Delivery
This product is entirely digital. You will receive the plan via email in PDF format.
Return Policy
Return Policy
All purchases of barndominium house plans are non-refundable and
non-exchangeable due to the digital format of the product. Please ensure
that the chosen plan suits your requirements before making the
purchase.




