My Barndominium Plans
Condale Barndominium House Plan (PL-240032)
Condale Barndominium House Plan (PL-240032)
Couldn't load pickup availability
Specifications
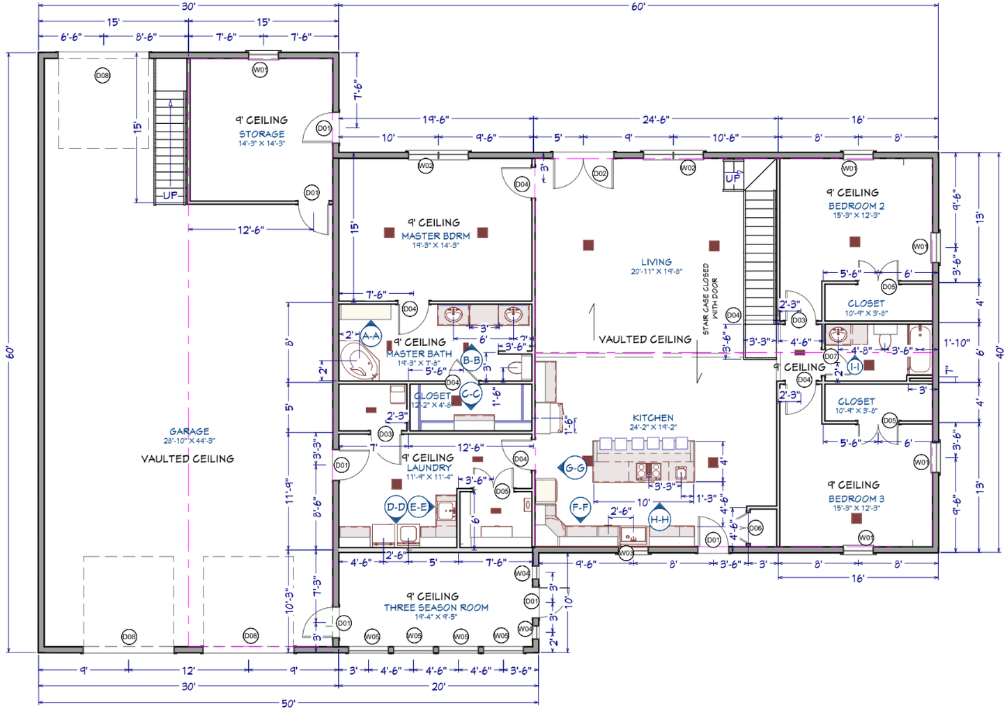
- Dimensions: 60' x 40'
- Living/Heated Area: 2,600 sq. ft.
- 2 Stories
- 3 Bedrooms
- 2 Bathrooms
- 2 Garages
About
Introducing the Condale Home, a spacious haven blending modern living with rustic charm.
Spanning 60' x 40', this two-story barndominium offers 2,600 sq. ft. of living space.
With 3 bedrooms, 2 bathrooms, and an 1,800 sq. ft. 2-car garage featuring a convenient storage room, it caters to both comfort and functionality.
Embrace the outdoors with front and back porches, ideal for relaxation or entertaining.
Inside, the expansive open concept living area seamlessly connects to a well-appointed dining room and kitchen with pantry and laundry rooms.
Enjoy additional versatility with a sunroom and the second-floor loft, making the Condale Home a sanctuary of contemporary country living.
What's Included?
You will receive a PDF download with stock plan documents that include the following:
- Detailed Floor Plan
- Elevations
- Electrical/Lighting Plan
- Foundation Layout Plan
- Pole Layout Plan
- Roof Plan
- Window, Door & Light Schedule
Click here to download a sample plan.
Plan Modifications
Looking to make changes to our plans? Get in contact with us and our team will be in touch within 48 hours with a free personalized quotation.
*All square footages are estimates
Share
What's not included?
What's not included?
- Architectural or Engineering Stamp: To be addressed locally if deemed necessary.
- Site Plan: To be addressed locally when it is deemed necessary.
- Energy calculations: To be addressed locally when they are deemed necessary.
Delivery
Delivery
This product is entirely digital. You will receive the plan via email in PDF format.
Return Policy
Return Policy
All purchases of barndominium house plans are non-refundable and
non-exchangeable due to the digital format of the product. Please ensure
that the chosen plan suits your requirements before making the
purchase.








